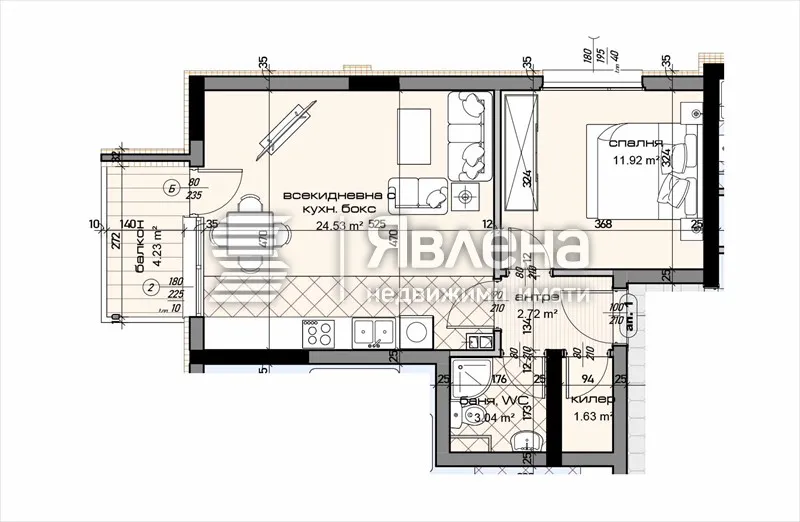
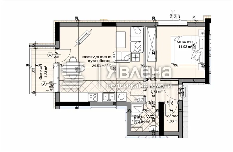
! Първата копка е направена през октомври 2024 г. Агенция "Явлена" ви представя уникалната възможност да придобиете най-изгодния апартамент с една спалня в комплекс "Towers", разположен в желания квартал Младост. Имаме удоволствието да предложим този апартамент на различни етажи в сградата. Разпределение: просторна всекидневна с западно изложение и площ 24,5 кв.м, спалня 12 кв.м, санитарно помещение, килер и балкон 5 кв.м. Жилището има чиста площ от 56 кв.м и обща площ от 68,77 кв.м. Комплекс "Towers" е разположен на стратегическо място, осигуряващо бърз достъп до важни точки като хипермаркетите Кауфланд и Лидл, плувен басейн, паркове, стадион и търговски център "Delta Planet Mall". Районът се отличава с отлична транспортна свързаност и разнообразие от образователни институции и детски заведения. В комплекса, състоящ се от две 18-етажни сгради с общо 378 апартамента, са на разположение открити и покрити паркоместа, гаражни клетки, парк за отдих и разходки. За повече информация, въпроси и детайли, моля, обадете се на посочения номер.(http://www.yavlena.com/145269) ID:Z-145269
1 / 10























2-стаен, Младост, Варна
€107,900 / 211,034 лв.
(€1,564 / 3,059 лв. / кв.м)
Характеристики
квадратура
брой стаи
етаж
Вид строителство
Особености на имота
- С гараж
- Детски градини
- В близост до парк
Описание
Прочети още
Училища и детски градини
Детски градини
Начални
Основни
Средни
Име
Адрес
Ясла
Разстояние
Ипотечен кредитен калкулатор
Варна Младост Двустаен апартамент
Зареждаме...
