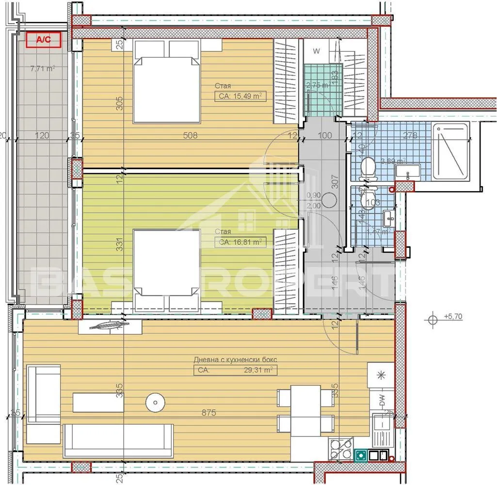
Реф. № Z-012704Агенция за недвижими имоти BAS Properties предлага за продажба тристаен апартамент в новострояща се жилищна сграда, разположена в кв. Бояна – м. Гърдова глава. Имотът е изцяло с южно изложение, с просторни помещения и функционално разпределение, подходящ както за семейно жилище, така и за дългосрочна инвестиция.Основни параметри:Тип имот: Тристаен апартаментЛокация: кв. Бояна (м. Гърдова глава), гр. СофияПлощ: 113.28 кв.м.Строителство: Тухла, 2026 г.Етап: След АКТ 14Етаж: 3 от 5Отопление: Газ и електричествоИзложение: ЮгАсансьор: ДаРазпределение:Входно антреПросторна дневна с кухненски бокс и трапезарияДве спалниБаня с тоалетнаОтделна тоалетнаСкладТерасаСъстояние: Апартаментът се издава по БДС. Просторните стаи, правилните форми и южното изложение осигуряват светлина, комфорт и отлична функционалност.Сграда и локация: Имотът е част от модерен комплекс, проектиран с фокус върху качеството на живот, сигурността и уюта. Сградата е с луксозна визия, окачена фасада, машинна мазилка и газификация. Предвидени са луксозни общи части, метална поръчкова входна врата и висок клас дограма REHAU GENEO 86 мм с троен стъклопакет в цвят антрацит. Локацията предлага чист въздух, зелена среда и същевременно бърз достъп до бул. България, Южната дъга и центъра на София, както и удобен градски транспорт.За повече информация и организиране на оглед, свържете се с нас. Осигуряваме безплатно съдействие при банково кредитиране.

Вход
Или
Все още нямаш профил?
Създай профил
1 / 10























3-стаен, Бояна, София
€311,080 / 608,420 лв.
(€2,753 / 5,384 лв. / кв.м)
Характеристики
квадратура
брой стаи
година на строеж
етаж
Описание
Прочети още
Наблизо има
В непосредствена близост се намират:
Банкомат
975м
Ресторант
Grande Bar & Dinner983м
Училища и детски градини
Детски градини
Начални
Основни
Средни
Няма намерени детски градини
Ипотечен кредитен калкулатор
София Бояна Тристаен апартамент