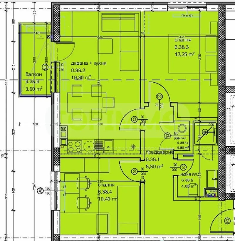
ТОПИММО предлага за продажба нов проект в района на ж.к. Кайсиева градина . Имотът, който представяме се намира на единадесети етаж от дванадесет, със западно изложение и следното разпределение: Г-образен коридор с килер, всекидневна с кухненска част 19.30 кв.м. с излаз на тераса, спалня 10.40 кв.м., втора спалня 12.25 кв.м., санитарен възел. С възможност за закупуване на паркомясто или гараж. Гъвкави схеми на плащане. Инвестирате сега и получавате гарантирано качество с фиксирана цена до края на строителството.Можем да организираме оглед в удобно за вас време, свържете се с нас! Референтен номер: Z-PL-4378

Вход


Или
Все още нямаш профил?
Създай профил
1 / 2









3-стаен, Кайсиева градина, Варна
€108,878 / 212,947 лв.
(€1,296 / 2,535 лв. / кв.м)
Характеристики
квадратура
брой стаи
година на строеж
етаж
Описание
Прочети още
Наблизо има
В непосредствена близост се намират:
Банкомат
631м
Паркинг
695м
Кафене
653м
Училища и детски градини
Детски градини
Начални
Основни
Средни
Няма намерени детски градини
Ипотечен кредитен калкулатор
Варна Кайсиева градина Тристаен апартамент