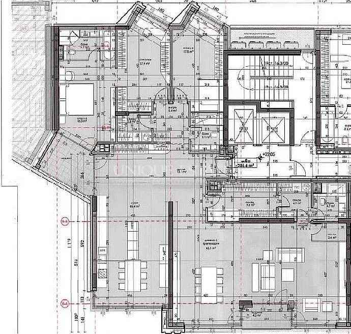
Разпределението включва входно антре, просторна дневна зона, отделна кухня с голяма трапезария и тераса, две спални - всяка със собствена гардеробна и баня с тоалетна, трета спалня/гардеробна, както и самостоятелно перално помещение
Unique Estates представя на Вашето внимание просторен четиристаен апартамент за продажба в емблематичната сграда „Диамант“ II, разположена в един от най-елитните квартали на София - кв. Изгрев.
Районът се отличава с отлична локация, бърз достъп до центъра на града и добре изградена инфраструктура, като същевременно предлага спокойна атмосфера и сигурност в сърцето на столицата.
Апартаментът е ситуиран на седми етаж и се продава на шпакловка и замазка, което предоставя възможност за оформление според личните предпочитания на бъдещия собственик. С обща площ от 308 кв.м., имотът включва входно антре, просторна дневна, отделна кухня с трапезария, две спални с гардеробни и бани, както и трета спалня - гардеробна и самостоятелно перално помещение. Всички помещения са оборудвани със съвременни технологични решения и индивидуална климатизация, осигуряващи максимален комфорт.
Към имота има възможност за закупуване на подземно паркомясто и гараж с капацитет за паркиране от един до четири автомобила, което осигурява допълнително удобство за жителите на сградата.
„Диамант II“ е първата сграда в България с индивидуална рекуператорна система за всеки апартамент и е отличена с наградата „Сграда на годината“ през 2021 г. На разположение са 24-часова охрана, видеонаблюдение и контрол на достъпа, както и уелнес център и зони за отдих, гарантиращи високо ниво на сигурност и комфорт.
Разпределение:
Предимства:
- Престижна локация
- В близост до Ловен парк и Борисовата градина и спортни комплекси
- Възможност за закупуване на повече от един гараж
- Красиви гледки към Витоша
- Луксозна сграда с отличие " Сграда на годината "
- Висок клас технологии и ниво на сигурност












