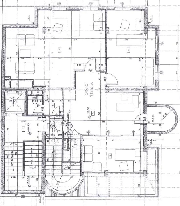
ОТЛИЧНА ЛОКАЦИЯ!!ВЪЗМОЖНОСТ ЗА ПРЕУСТРОЙСТВО!!Lions Group Real Estate Ви предлага офис имот в ж.к.Стрелбище, на 100 метра от булевард България. Имота е разположен на осми етаж от общо девет и е със застроена площ от 113кв.м. Разпределението на офиса към момента е следното:-Конферентна зала със зимна градина;-Приемна;-Две работни помещения;-Кухненски бокс;-Тераса;-Тоалетна. Имота може лесно да бъде преустроен по вашите индивидуални нужди. Подходящ е за - офис, детски център или стоматологичен кабинет. Сградата е разположена на ул.Тулча, в непосредствена близост до кръстовището на булевардите Гоце Делчев и България. При интерес може да се свържете с нас на посочените контакти.ЗА ДРУГИ ИМОТИ В РАЙОНА ---> lionsgroup.bg#ЛЪВЪТ в недвижимите имоти Лайънс Груп недвижими имоти е фирма с дългогодишен опит в сферата на недвижимите имоти. Ние познаваме и предлагаме всички актуални оферти на пазара за недвижими имоти, като ще ви запознаем напълно БЕЗПЛАТНО с тях при консултация в нашия офис. Лайънс Груп извършва всички технически и юридически проверки на имота, който сте избрали. Агенцията също така съдейства и за отпускане на банков кредит при индивидуални преференциални условия за своите клиенти.LIONS GROUP REAL ESTATE е единствената компания с online инвестиционен канал в ▶️youtube‼👉Ако се интересувате от инвестиции в недвижими имоти🏘,aбонирайте се за канала ни и получавайте знания📖 и информацияℹ, НАПЪЛНО БЕЗПЛАТНО‼️Доверете се на над 1⃣0⃣ годишния ни опит в бизнеса с недвижими имоти, посредничество при сделки и инвестиране!🌐Линк към канала за ИНВЕСТИЦИИ В ИМОТИ: www.youtube.com/@ИнвестициивимотиВодещ брокер Росен Ивановреф. номер Z-14664Продажна цена €270000За повече информация и огледи 0887222477

Вход
Или
Все още нямаш профил?
Създай профил
1 / 10























Офис, Стрелбище, София
€270,000 / 528,074 лв.
(€1,812 / 3,544 лв. / кв.м)
Характеристики
квадратура
етаж
Особености на имота
- Детски градини
Описание
Прочети още
Транспорт
Най-близки спирки на градски транспорт до адреса:
Метро
Автобусни линии
Трамвайни линии
Училища и детски градини
Детски градини
Начални
Основни
Средни
Име
Адрес
Ясла
Разстояние
Ипотечен кредитен калкулатор
София Стрелбище Офис