Агенция ЕРА Надежда продава тристаен апартамент в новострояща се сграда в Люлин 10.
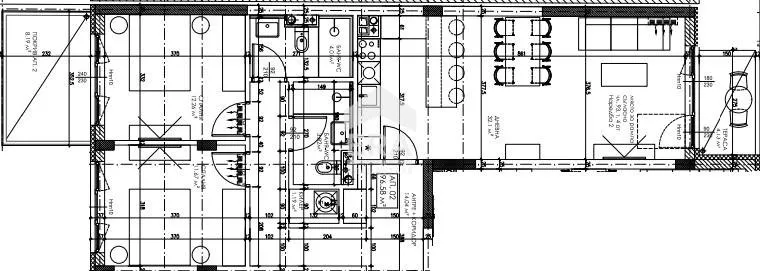
Апартаментът се намира на трети жилищен етаж и има следното разпределение: входно антре, просторна дневна с кухненски бокс, две спални, две бани, тераса и килер.
Сградата се намира близо до Орион и бул. Сливница.
Налични са гаражи на цени от 40 000 евро и паркоместа на цени от 20 000 евро.
В близост е Западен парк, има множество транспортни връзки, магазини, дентален център.
Оферта 3304115
1 / 2









3-стаен, Люлин 10, София
€200,000 / 391,166 лв.
(€1,770 / 3,462 лв. / кв.м)
Характеристики
квадратура
брой стаи
година на строеж
етаж
Вид строителство
Особености на имота
- Асансьор
Описание
Прочети още
Ипотечен кредитен калкулатор
София Люлин 10 Тристаен апартамент
Зареждаме...
