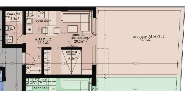
Facebook Pixel 1-стаен в София за 122,518€ - Zimoti
Logo