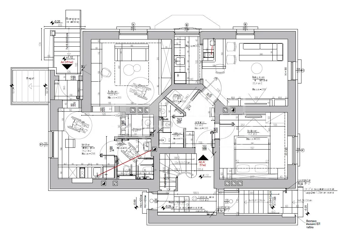
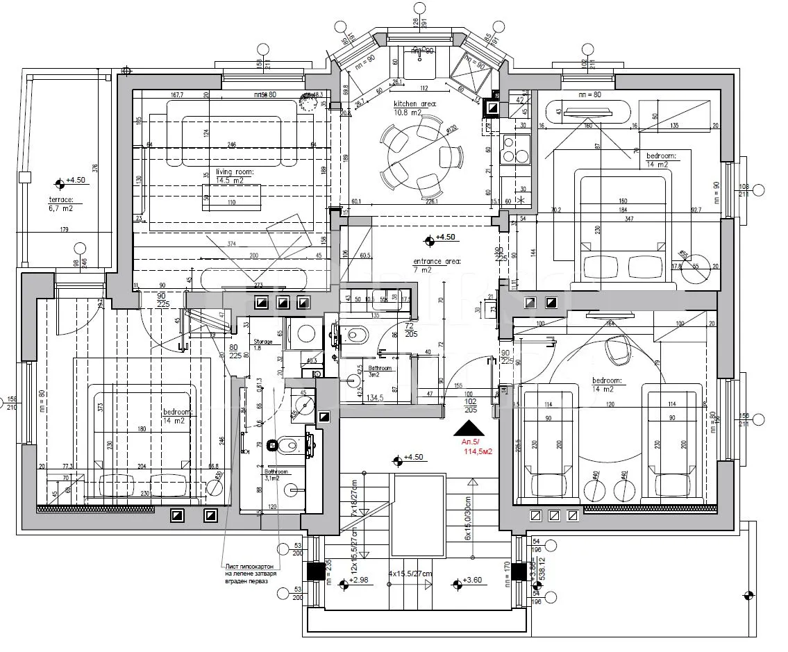
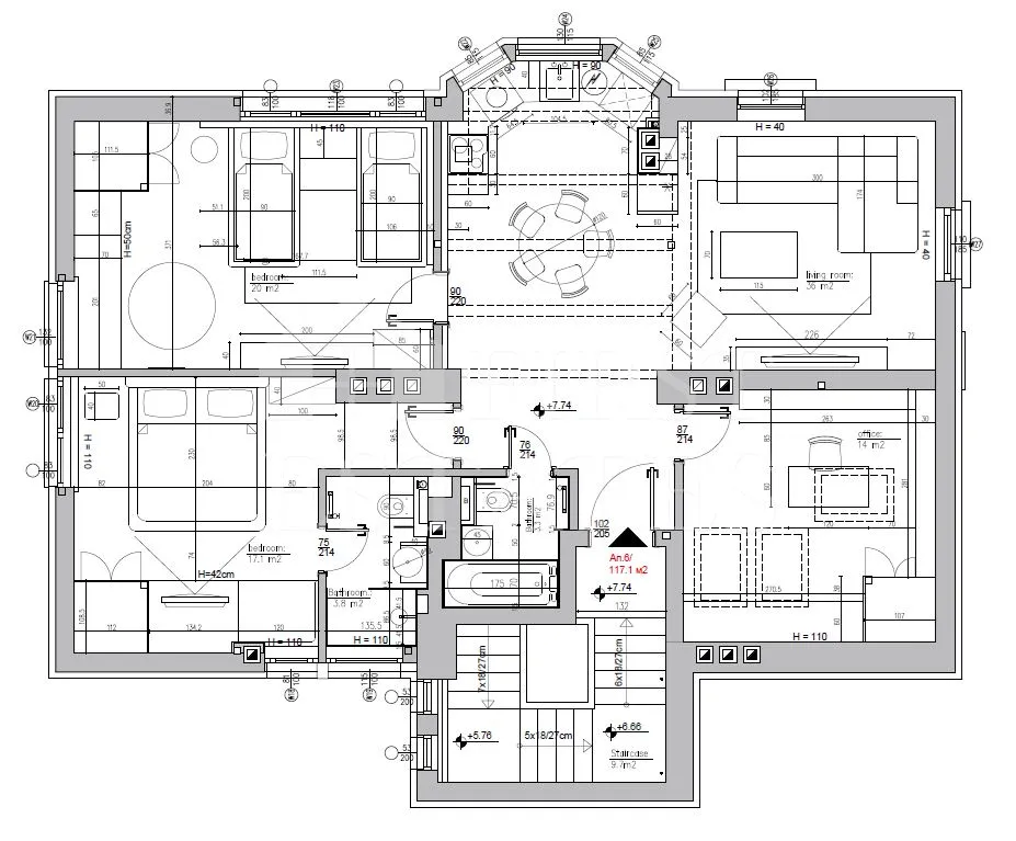
Фърст Естейтс, част от Keller Williams удоволствие ви представя най-новия си проект - многофамилни къща в сърцето на София.Имотът е разположен на 4 етажа. Състои се от 6 отделни апартамента.Разпределението е:Ниво полусутерен:ателие 1 с обща площ от 67.04 м2 състоящо се от спалня, баня с тоалетна, хол с трапезария и кухняателие 2 с обща площ от 65.44 м2 състоящо се от спалня, баня с тоалетна, хол с трапезария и кухняНа ниво първи етаж:апартамент 3 с обща площ 58.35 м2 състоящ се от спалня, баня с тоалетна, хол с трапезария и кухняапартамент 4 с обща площ 65.21 м2 състоящ се от спалня, баня с тоалетна, хол с трапезария и кухняНа ниво втори етаж:апартамент 5 с обща площ 130.99 м2 състоящ се от три спални, три бани с тоалетни, хол с трапезария и кухняНа ниво трети етаж:апартамент 6 с обща площ 133.97 м2 състоящ се от три спални, три бани с тоалетни, хол с трапезария и кухняИмотът има чудесен вътрешен двор.Локацията е в сърцето на София, в артистичен, тих и спокоен квартал. Ресторанти и заведения, както и арт клубове и галерии са само част от разнообразието на района.Близостта до училища, детски градини, градски транспорт са предимство за новите собственици на имота.Къщата е перфектна както за живеене, така и като инвестиция. За повече информация и организиране на оглед, моля свържете се с нас на телефон: 0 700 15 15 1 и цитирайте код на офертата: Z-6-12296
1 / 8



















Къща, Център - Север, София
€2,190,000 / 4,283,268 лв.
(€4,203 / 8,220 лв. / кв.м)
Характеристики
квадратура
година на строеж
Описание
Прочети още
Ипотечен кредитен калкулатор
София Център - Север Къща
Зареждаме...
