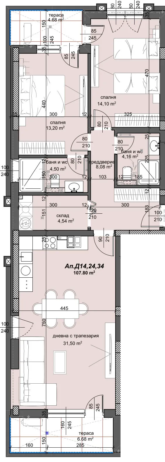
***Най-дългоочаквания проект на инвеститора!***Комплекс Олимпия Парк е ситуиран в непосредствена близост до Парк Лаута в район от ж.к. Тракия, съчетаващ спокойствие, свеж въздух и комуникативност. На мястото на небезизвестния аквапарк Акваленд са проектирани за изграждане 6 десететажни секции, разполагащи с просторни двустайни и тристайни апартаменти. Двата високоскоростни електрически асансьора във всеки вход и луксозни завършените общи части на сградите ще направят прибирането вкъщи още по-приятно. За удобство на новодомците са предвидени детски площадки, плувен басейн и търговски площи, а паркирането е обезпечено на 100% с подземни и наземни паркоместа.Предложеният апартамент Д-14 се намира във вход 'Д' на етаж 4.Апартаментът разполага с просторна дневна и тераса с югозападно изложение, две бани с тоалетни, складово помещение, две спални и втора тераса със североизточно изложение.Всички свободни апартаменти може да разгледате в сайта ни: www.olympia.bg, аповече информация може да получите на телефони: 0887008030 / 0886009030

Вход


Или
Все още нямаш профил?
Създай профил
1 / 3









3-стаен, Тракия - Запад, Пловдив
€189,950 / 371,510 лв.
(€1,484 / 2,902 лв. / кв.м)
Характеристики
квадратура
брой стаи
година на строеж
етаж
Особености на имота
- Южно изложение
- Просторно жилище
- Детски градини
Описание
Прочети още
Наблизо има
В непосредствена близост се намират:
Банкомат
ДСК531м
Ресторант
216м
Аптека
36.6189м
Паркинг
550м
Кафене
Chill Out66м
Училища и детски градини
Детски градини
Начални
Основни
Средни
Име
Адрес
Ясла
Разстояние
Ипотечен кредитен калкулатор
Пловдив Тракия - Запад Тристаен апартамент