Директор инвеститора! Без комисионна!
Представяме на Вашето внимание жилищна сграда в кв. Горубляне. Намира се на 6 7 минути от градски транспорт, денонощни хранителни магазини, аптека и детска градина.
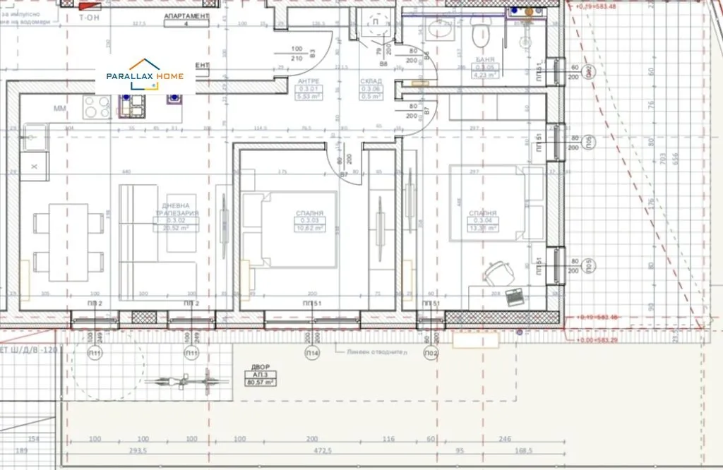
Предлаганият апартамент (ап. 3) е със застроена площ 67,82 кв.м и обща площ 80,57 кв.м.
РАЗПРЕДЕЛЕНИЕ:
Входно антре
Складово помещение
Дневна с кухненски бокс и трапезария
Спалня
Втора спалня
Баня с тоалетна
Тераса - СОБСТВЕН двор към жилището
Изложение: изток/юг
Жилищата се издават с контакти и ключове за ел.инсталацията, блиндирана входна врата, както и прекарани изводи за климатик.
Предлагат се двустайни и тристайни апартаменти, както и паркоместа.
Схеми на плащане: гъвкави, съобразени с изискванията на пазара и гарантиращи спокойствието на купувача до завършването и издаването на сградата.
Срок на завършване: средата на 2027 г.
За повече информация, свържете се с нас!
1 / 4











3-стаен, Горубляне, София
€173,000 / 338,359 лв.
(€2,136 / 4,178 лв. / кв.м)
Характеристики
квадратура
брой стаи
година на строеж
Вид строителство
Описание
Прочети още
Ипотечен кредитен калкулатор
София Горубляне Тристаен апартамент
Зареждаме...
