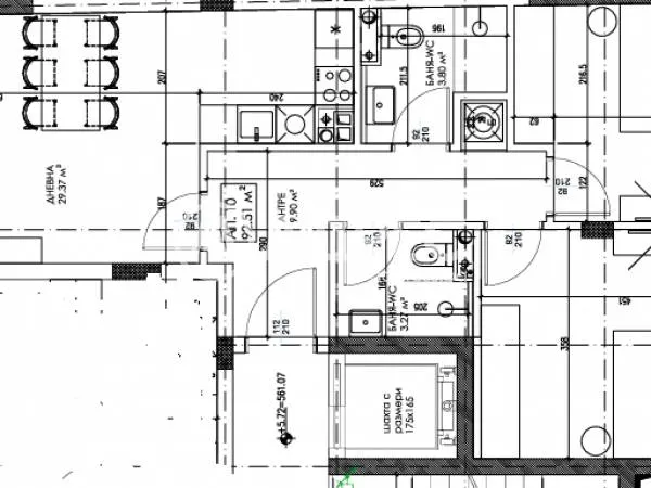
Строежът започва м. март 2026 год.! Хол с бокс и трапезария 29.5 кв.м; спалня 16 кв. м, детска 13 кв. м, балкон 4,25 кв. м; бани по 3.5 кв.м; мокро помещение. Изложение: север-юг. Ще се използват строителни материали, произведени от водещи в бранша производители, асансьор за шест лица, външни подсилени врати, на ш/з. Застроена площ 92.51 кв. м. Начало на строителство - Март 2026 Край на строителство /Акт 15/ - Септември 2027 Акт 16 - Декември 2027 Подземни гаражи от 32000€ до 50000€ /двойно/, подземни паркоместа по 26000€; Надземни гаражи от 38000 до 45000€, дворно паркиране 2 бр. по 20000€. В близост до надземен градски транспорт. Новостроящата се сграда в модерен стил и качествено строителство. Възможност за избор на етаж. Обади се сега и цитирай този код Z-655728

Вход
Или
Все още нямаш профил?
Създай профил
1 / 3









3-стаен, Люлин - 6 до 10, София
€196,000 / 383,343 лв.
(€1,719 / 3,362 лв. / кв.м)
Характеристики
квадратура
брой стаи
година на строеж
етаж
Особености на имота
- Южно изложение
- Просторно жилище
- Популярен квартал
- С гараж
- Детски градини
- В близост до парк
- Желан имот
Описание
Прочети още
Наблизо има
В непосредствена близост се намират:
Бар
Бирария Бавария796м
Банкомат
ПИБ314м
Ресторант
О'Шипка451м
Аптека
93м
Кафене
523м
Транспорт
Най-близки спирки на градски транспорт до адреса:
Метро
Автобусни линии
Трамвайни линии
Училища и детски градини
Детски градини
Начални
Основни
Средни
Име
Адрес
Ясла
Разстояние
Ипотечен кредитен калкулатор
София Люлин - 6 до 10 Тристаен апартамент
