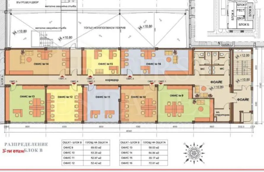
First Estates предлага офис за продажба в нов модерен Офис комплекс на комуникативна локация до централен булевард и в близост метростанция. Офисът е разположен на самостоятелен 4 етаж от сградата. Разделен е на отделни кабинети, повечето от които могат да се обединят в Open space пространство. Просторни светли офиси с височина 4.10. Окачен таван под - гранитогрес, фаянс и теракота. ПВЦ дограма, висок клас стъкла и профили. Централна климатизация, структурно окабеляване, системи за видеонаблюдение, пожароизвестяване, контролиран достъп. ДДС не се дължи. За повече информация и организиране на оглед, моля свържете се с нас на телефон: 0 700 15 15 1 и цитирайте код на офертата: Z-6-5783

Вход


Или
Все още нямаш профил?
Създай профил
1 / 10























Офис, Полигона, София
€601,900 / 1,177,214 лв.
(€1,300 / 2,543 лв. / кв.м)
Характеристики
квадратура
година на строеж
етаж
Особености на имота
- С паркомясто
Описание
Прочети още
Наблизо има
В непосредствена близост се намират:
Банкомат
Сибанк352м
Ресторант
Raffy314м
Аптека
Аптека Ревита534м
Паркинг
499м
Кафене
294м
Транспорт
Най-близки спирки на градски транспорт до адреса:
Метро
Автобусни линии
Трамвайни линии
Училища и детски градини
Детски градини
Начални
Основни
Средни
Име
Адрес
Ясла
Разстояние
Ипотечен кредитен калкулатор
София Полигона Офис