Директни продажби без комисион!
920 на квадратен метър за този имот!!!
Представяме Ви нашият най-нов проект! Модерен жилищен комплекс, разположен в едно от най-предпочитаните и динамично развиващи се места край Пловдив с. Марково.
Тук ще откриете перфектният баланс между спокойствие, чист въздух и панорамни гледки, съчетани с бърз и удобен достъп до града.
🏢 Концепция и разпределение:
Комплексът се състои от две модерни четириетажни сгради Сграда А и Сграда Б, проектирани с внимание към всеки детайл и с функционални разпределения, които осигуряват комфорт и светлина във всяко жилище.
Сграда А
4 етажа
33 апартамента
4 гаража
20 паркоместа
12 складови помещения
Сграда Б
4 етажа
32 апартамента
4 гаража
26 паркоместа
35 складови помещения
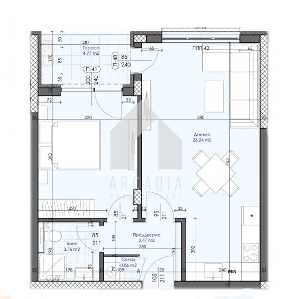
Апартамента, който предлагаме е с площ от 116кв.м. разпределени по следния начин - 72кв.м апартамент и 44кв.м. собствен двор.
Разпределение: дневна с трапезария и кухненски бокс - 26кв.м., спалня, баня с тоалетна, склад, веранда и собствен двор.
🌿 Предимства на комплекса:
✔ Съвременна архитектура и стилна визия
✔ Контролиран достъп и сигурна среда
✔ Простор и зелени площи
✔ Функционални разпределения
✔ Избор на етаж и изложение
✔ Осигурени гаражи и паркоместа
💼 Инвестиция с перспектива!
Индивидуална схема на плащане за всеки тип клиент!
Стартирало строителството възможност за покупка на зелено на преференциални цени!
Проектът е отличен избор както за собствен дом, така и за сигурна инвестиция с потенциал за висока възвръщаемост.
📞 Свържете се с нас за актуални наличности, цени и оглед на място. Оферта:28423
тел за връзка: 0879 056 454
Сега е най-подходящият момент да изберете своя нов дом!
1 / 6















2-стаен, Покрайнини, Пловдив
€106,600 / 208,491 лв.
(€919 / 1,797 лв. / кв.м)
Характеристики
квадратура
брой стаи
година на строеж
Описание
Прочети още
Ипотечен кредитен калкулатор
Пловдив Покрайнини Двустаен апартамент
Зареждаме...
