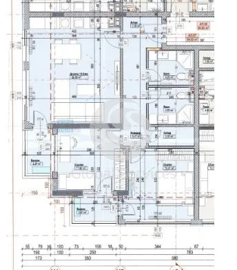
Глобъл Сървисиз продава тристаен апартамент в нова сграда в кв. МусагеницаРазположен в близост до училище, детска градина, магазини и др.Апартамент 3 e със застроена площ - 110 кв.м., площ със съответните ид.части от общите части на сградата - 94.92 кв.м.Разпределение:антре - 2.87кв.м.коридор - 3.54 кв.м.спалня -13.41 кв.м.втора спалня - 11.80дневна с кухненска част - 26.96кв.м.балкон - 5.12 кв.м.баня и тоалентмна - 4.04 кв.м.втора баня - 2.98 кв.м.склад - 1.62 кв.м.Изложение: юг/изтокКъм имота могат да се закупят и парко места.За повече информация и огледи: 0878552625,оферта № 15200 Росица ПетковаКонсултант Недвижими Имоти3В, Sofiiski geroi str., SofiaTel.: +359 (0)2 986 66 68Mobile: +359 (0)878552625Email: r.petkova@gsestates.comWeb: www.gsestates.eu Контакт с мениджър: a.vladimirova@gsestates.com 📧 📞 0885 706 434Ани Владимирова

Вход
Или
Все още нямаш профил?
Създай профил
1 / 2









3-стаен, Мусагеница, София
€324,500 / 634,667 лв.
(€2,950 / 5,770 лв. / кв.м)
Характеристики
квадратура
брой стаи
година на строеж
етаж
Особености на имота
- Саниран блок
- Южно изложение
- Детски градини
- Добри училища
Описание
Прочети още
Наблизо има
В непосредствена близост се намират:
Бар
Namib982м
Банкомат
407м
Ресторант
При молива125м
Аптека
150м
Паркинг
509м
Кафене
513м
Транспорт
Най-близки спирки на градски транспорт до адреса:
Метро
Автобусни линии
Трамвайни линии
Училища и детски градини
Детски градини
Начални
Основни
Средни
Име
Адрес
Ясла
Разстояние
Ипотечен кредитен калкулатор
София Мусагеница Тристаен апартамент
