ЕКСКЛУЗИВНО! ЕРА Голд има удоволствието да Ви представи нова бутикова жилищна сграда само със 7 апартамента в кв. Горубляне. Разположена на ул. Самоковско шосе 45, сградата предлага бърз достъп до спирки на гардски транспорт и на крачка разстояние от училище, магазини и други удобства, само на 15 минутин от центъра на София.
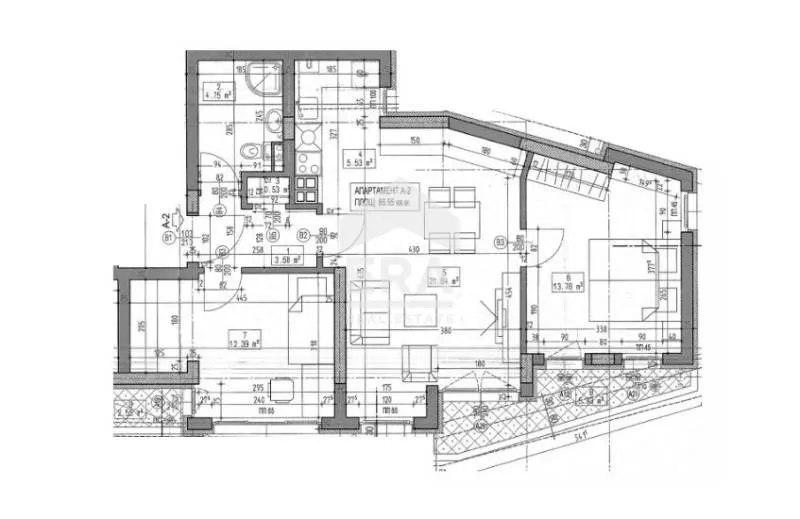
Тристаен апартамент състоящ се от : входно антре и коридор, слънчева всекидневна с кухненски бокс и трапезария, две спални, баня с тоалетна, складово помещение и две тераси. Изложение: Юг/Изток.
Обща площ: 105.96 кв. м.
Застроена площ: 86.65 кв. м.
Жилището се предава на шпакловка и замазка, с блиндирана входна врата и заготовки за радиатори и климатици.
Бутикова жилищна сграда само със 7 апартамента, разпределени на 5 жилищни етажа и партер с медицински център. В подземното ниво са предвидени 6 паркоместа и още 4 наземни паркоместа във вътрешния двор на сградата на цени от 20 833 евро.
Детайли:
- Стоманобетона конструкция с тухли Wienerberger - 25 см и топлоизолация - 10 см
- Красива фасада с мазилка и облицовка от ествествен камък
- Петкамерна ПВЦ дограма с двоен стъклопакет и система на VELUX на скатните покриви
- Подземното ниво е с предвидена настилка от шлайфан бетон, с достъп чрез входна гаражна врата H?rmann и автомобилна електрическа платформа
- Апартаменти със светла височина 2.65 м. и френски прозорци за максимална слънчева светлина
- Модерни общи части с настилка от естествен камък и висок клас асансьор, с видеодомофон и контролиран достъп
Всички цени са без включен ДДС!
CreditERA предоставя безплатна консултация и съдействие при финансиране на избрания от Вас имот от всички водещи банки в страната и ще договори най-добрите условия за вас!
Оферта 4062556
1 / 5













3-стаен, Горубляне, София
€180,132 / 352,308 лв.
(€1,716 / 3,356 лв. / кв.м)
Характеристики
квадратура
брой стаи
етаж
Вид строителство
Описание
Прочети още
Ипотечен кредитен калкулатор
София Горубляне Тристаен апартамент
Зареждаме...
