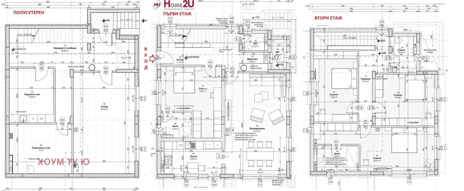
САМОСТОЯТЕЛНА КЪЩА ! ! ! ОТЛИЧНА ЛОКАЦИЯ ! ! ! АКТ 14 ! ! ! ВИСОК КЛАС СТРОИТЕЛСТВО ! ! !Представяме на вашето внимание триетажна самостоятелна къща, находяща се жк.Суходол със следното функционално разпределение:Полусутерен: Коридор, склад с прозорци който е 35кв.м. и може да бъде обособен като дневна или механа, перално п-ие и техническо п-ие.Първи етаж: Антре, всекидневна с обособена кухненска част, спалня, баня с тоалетна и отделна тоалетна.Втори етаж: три самостоятелни спални едната от които с дрешник и самостоятелна баня и тоалетна и втора самостоятелна баяна с тоалетна. Къщата ще бъде завършена със висок клас материали като външната изолация ще е 10 см.ЕPS, мазилка, дървени ламели, алуминиеви композитни панели, PVC дограма, стъклен парапет и каменен цокъл. Парцела е с големина от 350кв.м. Къщата се намира на отлична локация в близост до Кметството на кв.Суходол, 9-та детска градина 'Пламъче', 72-ро ОУ 'Христо Ботев', спирки на градски транспорт и магазини. За ваше улеснение прилагаме схема на имота. Обадете се сега и цитирайте следния код: 138455 Виж всички обяви в home2u4.bazar.bg или тук

Вход
Или
Все още нямаш профил?
Създай профил
1 / 13





























Къща, Горна баня, София
€357,000 / 698,231 лв.
(€1,050 / 2,054 лв. / кв.м)
Характеристики
квадратура
година на строеж
Описание
Прочети още
Наблизо има
В непосредствена близост се намират:
Бар
Club 303884м
Банкомат
563м
Ресторант
859м
Кафене
746м
Училища и детски градини
Детски градини
Начални
Основни
Средни
Няма намерени детски градини
Ипотечен кредитен калкулатор
София Горна баня Къща
