Астера Имоти предлага Еднофамилна двуетажна къща + таван, с РЗП от 302,60 кв.м., заедно с парцел от 385 кв.м., за продажба, в кв. Струмско на гр. Благоевград. Къщата е в процес на строителство и със срок на предаване в завършен вид до 31.03.2026г. Състои се от:
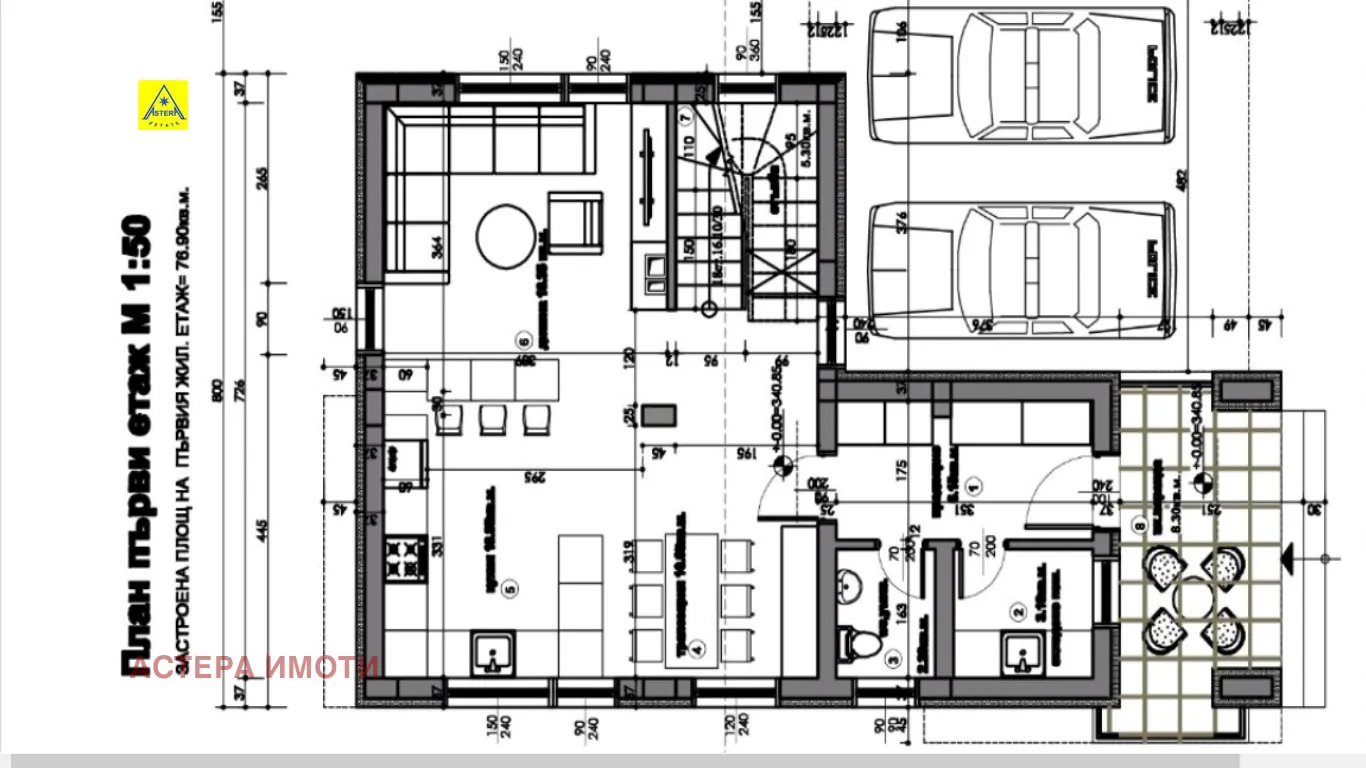
- 1-ви етаж, 76,90 кв.м.: антре, дневна с кухненски бокс, склад, баня с тоалетна, стълбишна клетка;
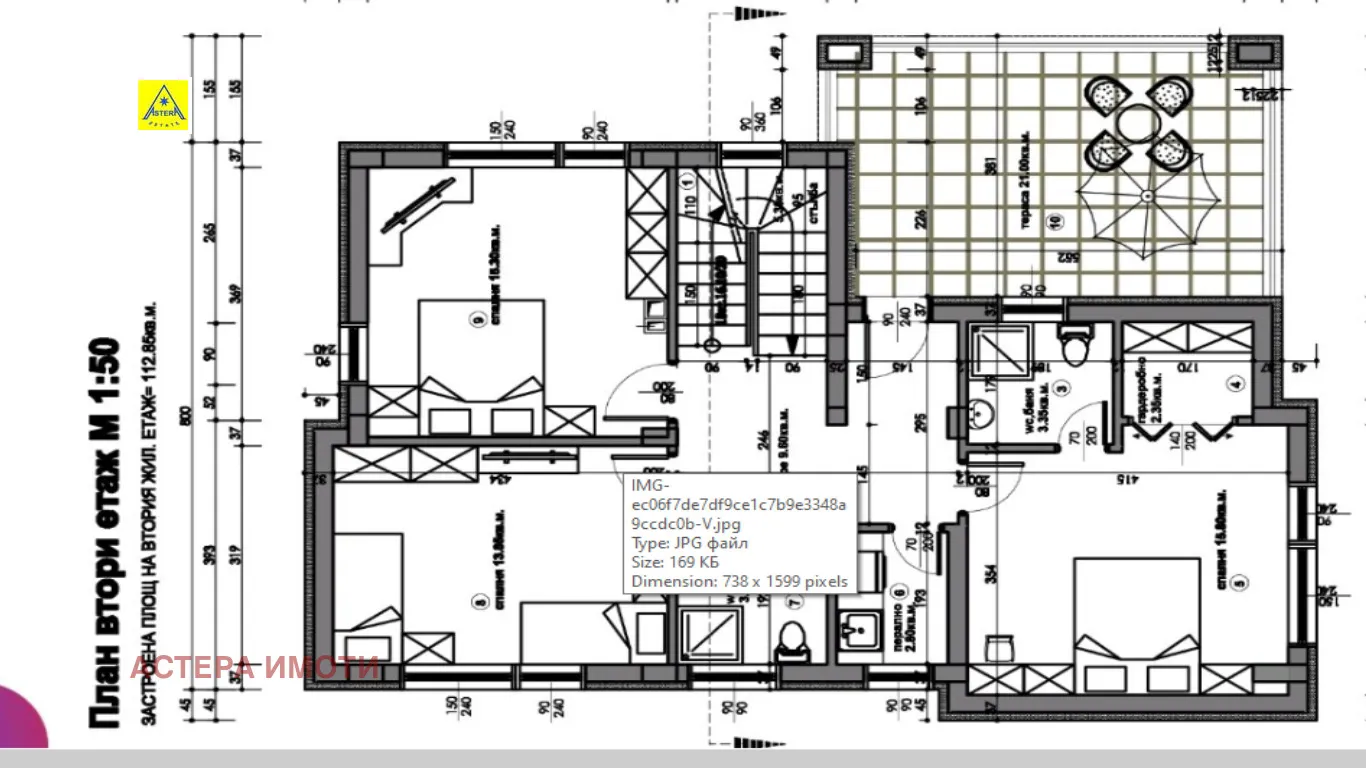
- 2-ри етаж, 112,85 кв.м.: антре, три спални помещения, две бани с тоалетни, мокро помещение, тераса 21 кв.м.;
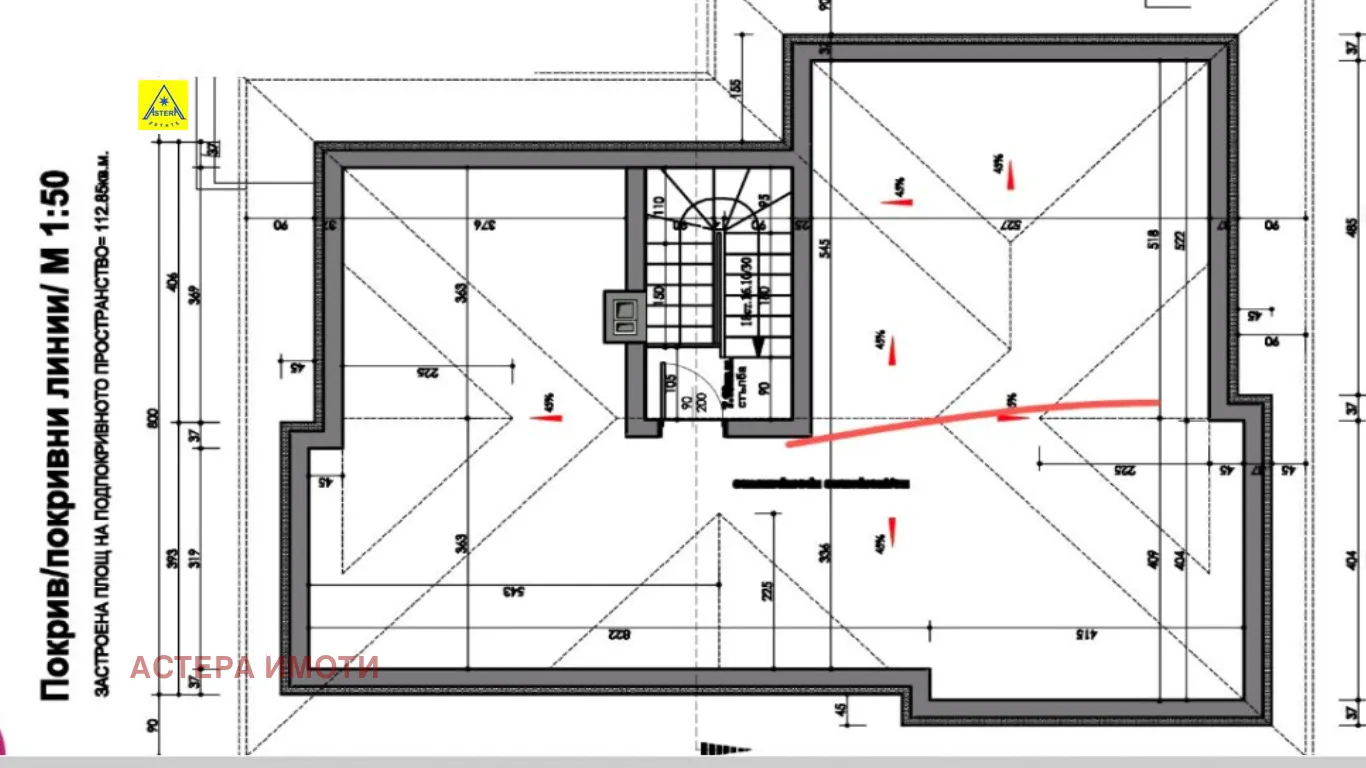
- 3-ти етаж, 112,85 кв.м.: едно общо помещение.
- Двор/парцел, 385 кв.м.: ограден, равен с възможност за закупуването и на съседния парцел, с площ от 431 кв.м.
Имотът разполага с ток, вода и канализация.
ПРЕДАВАНЕ НА АКТ 14 / СТЕПЕН НА ЗАВЪРШЕНОСТ 63%
Спепен на завършеност на обекта:
- Под на плоча (железобетонна);
- Стени на тухла - неизмазани;
- Дограма ПВЦ - висококачествена
- Електрическа и В и К инсталации - неизградени;
- Покрив от дървена конструкция с керемиди напълно завършен
- Вертикална планировка - незавършена
- Партиди за ток и вода.
ПРЕДАВАНЕ НА АКТ 16 / НАПЪЛНО ЗАВЪРШЕН СТРОЕЖ
Спепен на завършеност обекта:
- Под на циментова замазка;
- Стени и Тавани на финна гипсова мазилка;
- Дограма ПВЦ - висококачествена,
- Електрическа и В и К инсталации - до точка и тапа съответно;
- Външна изолация на сградата с дебелина 10 см. стиропор;
- Покрив от дървена конструкция с керемиди напълно завършен
- В завършен вид вертикалната планировка
- Партиди за ток и вода.
Цена на груб строеж (Акт 14/степен на завършеност 63 %): 342.270,25 лева - 175.000 евро
Цена на завършен строеж, с Акт 16: 498.736,65 лева - 255.000 евро
Номер на обява: Z-2603
1 / 15

































Къща, Струмско, Благоевград
€278,000 / 543,721 лв.
(€917 / 1,793 лв. / кв.м)
Характеристики
квадратура
година на строеж
Вид строителство
Особености на имота
- С паркомясто
Описание
Прочети още
Ипотечен кредитен калкулатор
Благоевград Струмско Къща
Зареждаме...
