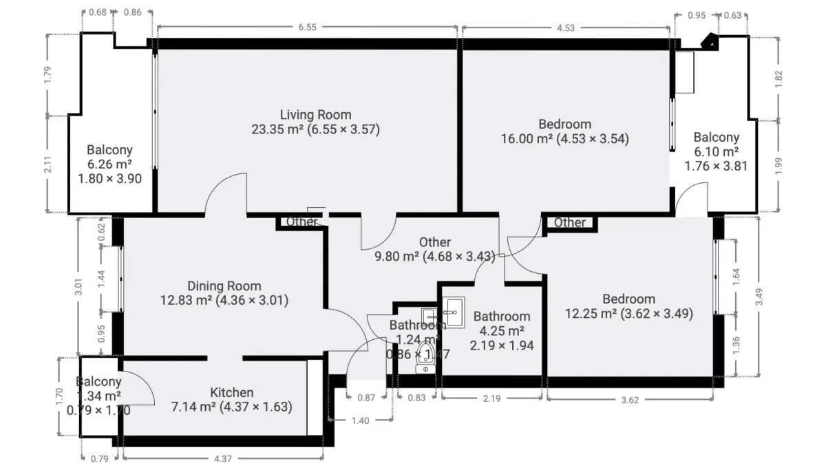
Агенция Столица Инвест предлага на Вашето внимание просторен монолитен 4- стаен апартамент в кв. Мальовица на град Русе. Имотът е с площ 125 кв.м. и е ситуиран на ет. 4 от общо 5. Апартамента се състои от ниво 1 - коридор, кухня с малка тераса, трапезария, дневна с голяма тераса, две спални с голяма тераса, баня, тоалетна; има възможност за присъединяване на ниво 2 – таванска стая, баня и тоалетна. Имота се предлага необзаведен, отоплението е на климатици, а изложението е Север – Юг. Към жилището има и прилежаща маза 20 кв.м. Локацията е отлична в близост до Бул. Гоце Делчев, големи магазини и всичко необходимо за едно домакинство.
Оферта: A-1291066
За повече информация и оглед се свържете с нас на телефон 0876 08 13 09, 0877 633 111. Очакваме Ви!
1 / 20











































Многостаен, Дружба, Русе
€123,500 / 241,545 лв.
(€988 / 1,932 лв. / кв.м)
Характеристики
квадратура
брой стаи
година на строеж
етаж
Описание
Прочети още
Ипотечен кредитен калкулатор
Русе Дружба Многостаен апартамент
Зареждаме...
