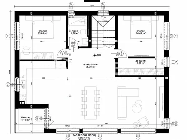
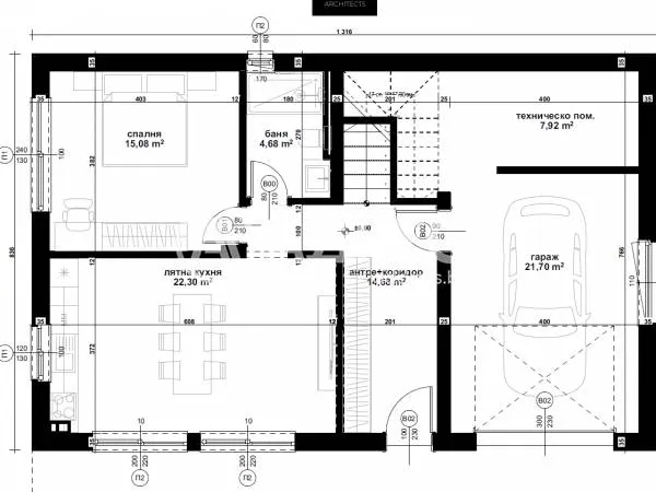
Нов проект на къща в кв. Изгрев, 500м от главен път. Къщата е на два етажа и има следното разпределение: Етаж 1: със спалня, прекрасна лятна кухня, гараж с топла връзка, баня, техническо помещение. Етаж 2: две спални, баня, дрешник и прекрасна голяма дневна с площ от 65 кв.м, от която се открива невероятна гледка. Намира се в кв. Изгрев, на 500м от главен път, асфалтов достъп, в близост до BILLA Нов проект, който ще бъде завършен с качествени материали и прецизност на детайла. Етап: пред акт 15 Къща в градски условия в съчетание с природа, отлична локация, модерна визия, собствен двор. Обади се сега и цитирай този код Z-641653

Вход
Или
Все още нямаш профил?
Създай профил
1 / 5













Къща, Изгрев, Варна
€440,000 / 860,565 лв.
(€1,760 / 3,442 лв. / кв.м)
Характеристики
квадратура
година на строеж
Описание
Прочети още
Наблизо има
В непосредствена близост се намират:
Банкомат
688м
Аптека
851м
Паркинг
Военно-морска болница918м
Училища и детски градини
Детски градини
Начални
Основни
Средни
Няма намерени детски градини
Ипотечен кредитен калкулатор
Варна Изгрев Къща
