Многофамилната жилищна сграда се намира в сърцето на ж.к. Владислав Варненчик, Варна. Със своите 5 сгради, комплексът предлага разнообразие от жилищни обекти. Наличието на парк от 3 дка в непосредствена близост добавя възможност за отдих и релаксация. Открийте уникалната възможност да притежавате дом в сърцето на живописния квартал Владислав Варненчик с новата жилищна сграда. Комплексът се отличава с модерна визия и изящен дизайн, който привлича погледите на всеки минувач. Със своите пет отделни сгради комплексът предлага на бъдещите си собственици избор на апаратменти с различна квадратура. В непосредствена близост до жилищната сграда ще откриете всичко необходимо за пълноценен живот. Само на кратко разстояние има 8 супермаркета, 5 аптеки и 3 бензиностанции. Тези удобства правят местоположението идеално за семейства с деца и хора с активен начин на живот. На кратко разстояние се намират 4 банки, 5 училища и 7 детски градини. Тези удобства осигуряват лесен достъп до финансови услуги, образование и грижа за децата, но и подчертават комфорта на живота в квартал Владислав Варненчик Варна. Сградата е удобно разположена, гарантирайки слънчева светлина и чудесни гледки от всеки жилищен етаж. Отстоянието от съседните сгради осигурява усещането за простор и свобода, а близостта до парка предлага възможност за релаксация сред зеленина и природа. Не пропускайте възможността за предлаганите гъвкави начини на закупуване! Комлекса се намира в квартал Владислав Варненчик Варна, предлагащ удобства и достъп до ключови места. Тук ще откриете множество магазини, банки, аптеки, детски градини и училища, осигуряващи пълен комфорт и удовлетворение на ежедневните нужди. Благодарение на добрата транспортна инфраструктура и близостта до основни пътища, всяко придвижване е бързо и лесно. Обади се сега и цитирай този код Z-672363

Вход
Или
Все още нямаш профил?
Създай профил
1 / 2









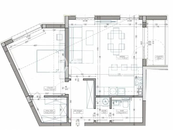
2-стаен, Владислав Варненчик, Варна
€128,400 / 251,129 лв.
(€1,493 / 2,920 лв. / кв.м)
Характеристики
квадратура
брой стаи
година на строеж
етаж
Особености на имота
- Просторно жилище
- Детски градини
Описание
Прочети още
Наблизо има
В непосредствена близост се намират:
Аптека
666м
Паркинг
687м
Кафене
829м
Училища и детски градини
Детски градини
Начални
Основни
Средни
Име
Адрес
Ясла
Разстояние
Ипотечен кредитен калкулатор
Варна Владислав Варненчик Двустаен апартамент
