🏗️ НОВ ЖИЛИЩЕН ПРОЕКТ – ВАРНА 🏡✨📍 Между Кайсиева градина и Възраждане 1🌟 Представете си да живеете на място, което съвсем скоро ще се превърне в един от най-модерните квартали на Варна – в близост до бъдещ нов МОЛ и две многопрофилни болници.✅ Разрешително за строеж вече е факт!✅ Стартираме строителството съвсем скоро!🏢 Сградата предлага:Двустайни, тристайни и четиристайни апартаментиПросторни разпределения и модерна архитектураАтрактивни цени – от 94 740 €🔨 Сигурност и доверие: Инвеститор с над 25 години опит в строителството.Гъвкави схеми на плащане (20/80 и др.)РЕФ.НОМЕР Z-14082За повече информация :Петя Маринова Лайънс груп недвижими имоти 0895 / 142-147

Вход
Или
Все още нямаш профил?
Създай профил
1 / 7

















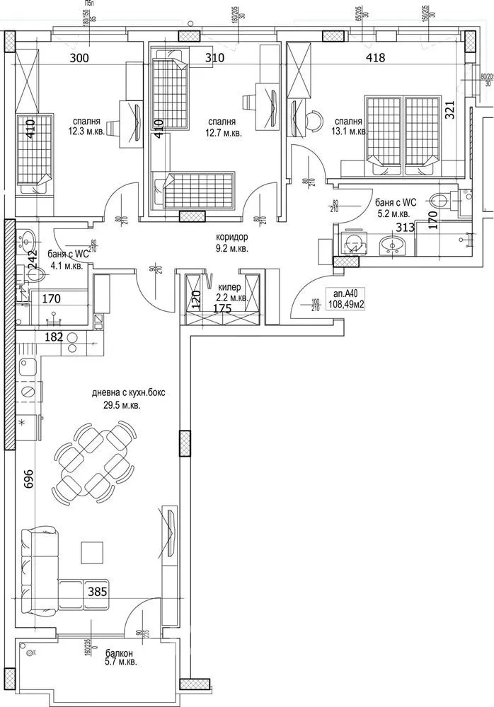
2-стаен, Кайсиева градина, Варна
€94,740 / 185,295 лв.
(€1,373 / 2,685 лв. / кв.м)
Характеристики
квадратура
брой стаи
година на строеж
Особености на имота
- Детски градини
Описание
Прочети още
Наблизо има
В непосредствена близост се намират:
Банкомат
352м
Паркинг
592м
Кафене
357м
Училища и детски градини
Детски градини
Начални
Основни
Средни
Име
Адрес
Ясла
Разстояние
Детска Градина №36 "Морска Звездица" (С Яслена Група)
с ясла
1,273м.
Ипотечен кредитен калкулатор
Варна Кайсиева градина Двустаен апартамент
