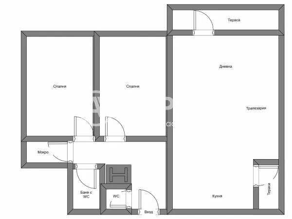
Тристаен апартамент в Драгалевци. Светъл, с южно и източно изложение, с гледка към Витоша и към София. Състои се от антре, тоалетна, баня - тоалетна, две спални, просторна дневна с балкон, кухненски бокс с балкон, мокро и складово помещения. Има газово локално отопление и допълнително бойлер за топла вода,както и климатик.
Жилището се намира на много спокойно и комуникативно място - недалеч от магазини и спирки на градски транпорт. Лесен достъп и с автомобил.
Към апартамента има 15,417% идеални части от недвижимия имот, а именно поземленият имот , върху който е построена сградата, цялото с площ от 427 кв.метра. Сградата е тухла, въведена в експлоатация 2007г.
Просторен и светъл обзаведен апартамент, има паркинг, външни ролетни щори,
Обади се сега и цитирай този код Z-683309













