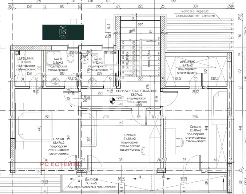
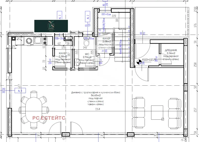
Референтен номер Z-402РС ЕСТЕЙТС предлага:Нова, модерна и функционално проектирана еднофамилна къща с площ от 195 кв.м., разположена в спокоен жилищен район на град Сливница, само на 24 км от столицата. Имотът се отличава с просторен двор от 500 кв.м., югоизточно изложение, висококачествено строителство и отлично съчетание между комфортен семеен живот и бърз достъп до София. Къщата е с Акт 16 от 2025 г. и се продава с включено ДДС.Локация:Град Сливница е разположен на около 20 минути път с автомобил от град София, с достъп по новоизградената магистрала Европа. Районът разполага с развита инфраструктура, включително училище, детска градина, магазини и приятен градски парк. Само на няколко минути пеша от имота се намират СУ 'Св. Св. Кирил и Методий', детска градина 'Сливница' и всички основни услуги за семейството.Предстои изграждане на скоростна жп линия с връзка към метрото на столицата, което прави тази локация още по-атрактивна за дългосрочно обитаване или инвестиция.Разпределение:Къщата е решена на две нива:Първо ниво:Просторна дневна с трапезария и кухненски бокс (общо 60 кв.м), антре, килер, тъмен килер и баня с тоалетна.Второ ниво:Три самостоятелни спални, две от които с гардеробна, две бани и тераса с панорамна гледка към Люлин планина.Високият клас на планиране гарантира отлична осветеност на помещенията и функционално използване на пространствата.Предимства: Самостоятелен двор с площ от 500 кв.м., подходящ за озеленяване, зона за отдих или детски кът Югоизточно изложение и равен, слънчев терен Модерен дизайн и функционално разпределение Френски прозорци с красиви гледки към планината Подово отопление във всички помещения Изведени инсталации за газ и климатици Вътрешни стени с дишаща варова мазилка Фасада с сертифицирана топлоизолационна система Поливна система и ограда Спокойствие и сигурност в малък град с бърз достъп до София Висококачествени материали от сертифицирани европейски производители Въведена в експлоатация през 2025 г.Оглед на имота:Можем да организираме оглед на имота в удобно за Вас време. За целта, свържете се с отговорния за офертата брокер и му кажете кога бихте искали да направите оглед.Резервация на имота:Имотът може да бъде резервиран и свален от продажба със заплащане на депозит, след което се прекратява провеждането на огледи с други купувачи и започва подготовка на документите за сключване на предварителен и окончателен договор. Свържете се с отговорния брокер за този имот за подробна информация.Финансиране на имота: Агенцията си партнира с най-големия кредитен посредник в България и можем да ви съдействаме с преференциални условия за жилищно кредитиране.

Вход
Или
Все още нямаш профил?
Създай профил
1 / 17





































Къща, Сливница, Югозападна България
€255,000 / 498,737 лв.
(€1,308 / 2,558 лв. / кв.м)
Характеристики
квадратура
година на строеж
етаж
Описание
Прочети още
Училища и детски градини
Детски градини
Начални
Основни
Средни
Няма намерени детски градини