1 / 4











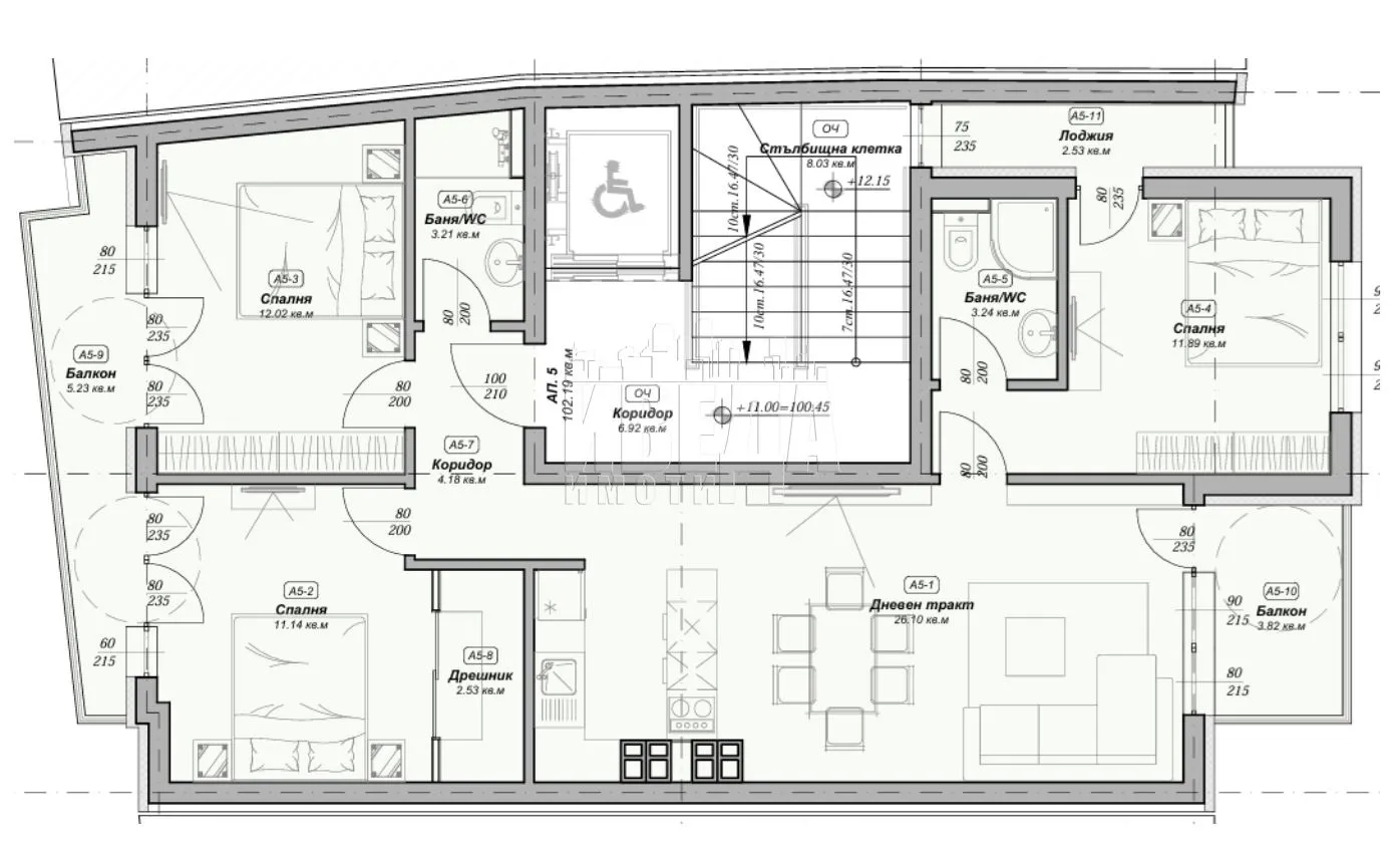
Многостаен, Цветен квартал, Варна
€251,600 / 492,087 лв.
(€1,810 / 3,540 лв. / кв.м)
Характеристики
квадратура
брой стаи
година на строеж
етаж
Вид строителство
Вид отопление
Особености на имота
- С паркомясто
- Детски градини
Училища и детски градини
Детски градини
Начални
Основни
Средни
Име
Адрес
Ясла
Разстояние
Детска Градина №35 "Детска Радост" (С Яслена Група)
с ясла
599м.
Ипотечен кредитен калкулатор
Варна Цветен квартал Многостаен апартамент
Зареждаме...
