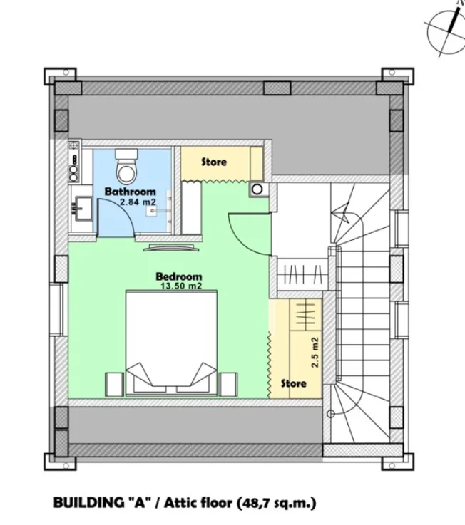
Бутиков проект от четири самостоятелни къщи, със съвременна архитектура и дизайн, оптимизирано разпределение и собствен двор, в един от зeлените райони на София. Ключово местоположение, гарантиращо достъп за минути до: Бизнес парк – София Летището Административения център на столицата по бул. “Цариградско шосе” Изходите на столицата по Самоковско шосе и Околовръстен път, избягвайки натоварения трафик Тип 1: РЗП- 146 м2; Двор с паркомясто 85 м2; автомобилен и пешеходен подход ид.ч. – 41м2; Тип 2: РЗП- 138 м2; Двор с паркомясто 100 м2; автомобилен и пешеходен подход ид.ч. – 49м2; Ситуация и вертикална планировка: Къщата е ситуирана в предната част на двора с обособен южен двор с кът за отдих, патио и площадка за барбекю; Всяка къща има едно паркомясто, както и общи части от автомобилен и пешеходен подход. ПЪРВИ ЕТАЖ – ТИП 1 Предверие Дневна с кухня и трапезария Баня с WC Сервизно помещение Склад Стълбище за 2 етаж ПЪРВИ ЕТАЖ – ТИП 2 Предверие Дневна с кухня и трапезария Баня с WC Склад Стълбище за 2 етаж ВТОРИ ЕТАЖ- ТИП 1 Коридор Две спални Баня с WC Стълбище за 3 етаж ВТОРИ ЕТАЖ – ТИП 2 Коридор Една спалня Баня с WC Сервизно помещение Стълбище за 3 етаж ТРЕТИ ЕТАЖ- ТИП 1 Коридор Една спалня Баня с WC Дрешник Склад Стълбищна клетка ТРЕТИ ЕТАЖ- ТИП 2 Коридор Една спалня Баня с WC Склад Стълбищна клетка

Вход
Или
Все още нямаш профил?
Създай профил
1 / 11

























Къща, Горубляне, София
Цена по запитване
Характеристики
квадратура
Квадратура на двора
Особености на имота
- С паркомясто
- Видео наблюдение
- Контрол на достьпа
- С гараж
- Затворен комплекс
- Охраняван имот
- В строеж
Описание
Прочети още
Наблизо има
В непосредствена близост се намират:
Ресторант
710м
Транспорт
Най-близки спирки на градски транспорт до адреса:
Метро
Автобусни линии
Трамвайни линии
Училища и детски градини
Детски градини
Начални
Основни
Средни
Име
Адрес
Ясла
Разстояние
Описание на проекта

ГОРУБЛЯНЕ - БОРИС РАНГЕЛОВ
Улица Борис Рангелов 36, 1138 София, България
София Горубляне Къща