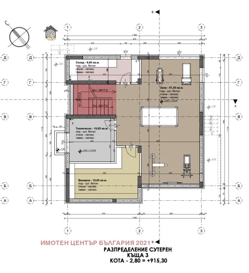
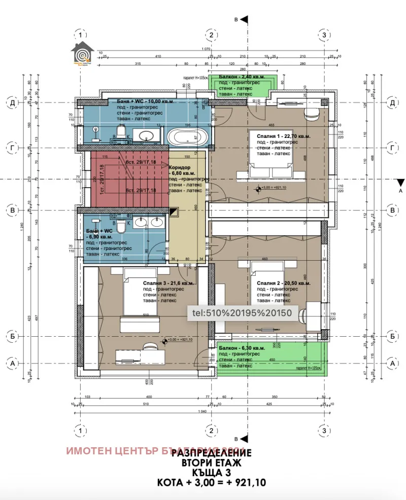
30% СЕГА, 70% на АКТ16!🏡 Ексклузивна възможност за дом сред природата и града три бутикови къщи в подножието на Витоша, с. Бистрица, СофияПредставяме ви три модерни къщи в начален етап на строителство, ситуирани в една от най-желаните и перспективни зони на София с. Бистрица. С перфектна локация на минути от Симеоновско шосе и Околовръстния път, тези имоти съчетават спокойствието на природата с удобствата на столицата.✨ Какво предлагат къщите?Всяка от тях е проектирана с мисъл за пространство, функционалност и стил на три етажа, с изключителен баланс между светлина, комфорт и модерна архитектура:🔹 Полусутерен мултифункционална зала, техническо помещение и складова площ🔹 Първи етаж просторен дневен тракт с кухненски бокс, тоалетна с мокро помещение, както и гараж🔹 Втори етаж три самостоятелни спални с индивидуални санитарни помещения за максимално удобство🔹 Трети етаж уникална покривна тераса с панорамни гледки, допълнителна дневна (възможна четвърта спалня) и баня с тоалетна🏡 Самостоятелни дворове за всяка къща:Къща 1: 290 кв.мКъща 2: 500 кв.мКъща 3: 485 кв.м🧱 Висок клас строителство използвани ще бъдат качествени, съвременни материали, които гарантират дълготрайност, енергийна ефективност и безкомпромисен уют.📐 Площи:Надземна РЗП: 313,6 кв.мПодземна част: 106 кв.м💰 Гъвкави схеми на плащане съобразени с нуждите на клиента и етапите на строителство.📩 Обадете се за презентация, архитектурни планове и възможности за персонализация. Водещ брокер на имота: Никола Апостолов

Вход
Или
Все още нямаш профил?
Създай профил
1 / 10























Къща, Симеоново, София
€699,900 / 1,368,885 лв.
(€1,666 / 3,259 лв. / кв.м)
Характеристики
квадратура
година на строеж
етаж
Особености на имота
- Просторно жилище
- Популярен квартал
- С гараж
Описание
Прочети още
Наблизо има
В непосредствена близост се намират:
Ресторант
My Choice114м
Паркинг
797м
Кафене
Сладкарница Романс219м
Транспорт
Най-близки спирки на градски транспорт до адреса:
Метро
Автобусни линии
Трамвайни линии
Училища и детски градини
Детски градини
Начални
Основни
Средни
Име
Адрес
Ясла
Разстояние
Ипотечен кредитен калкулатор
София Симеоново Къща
