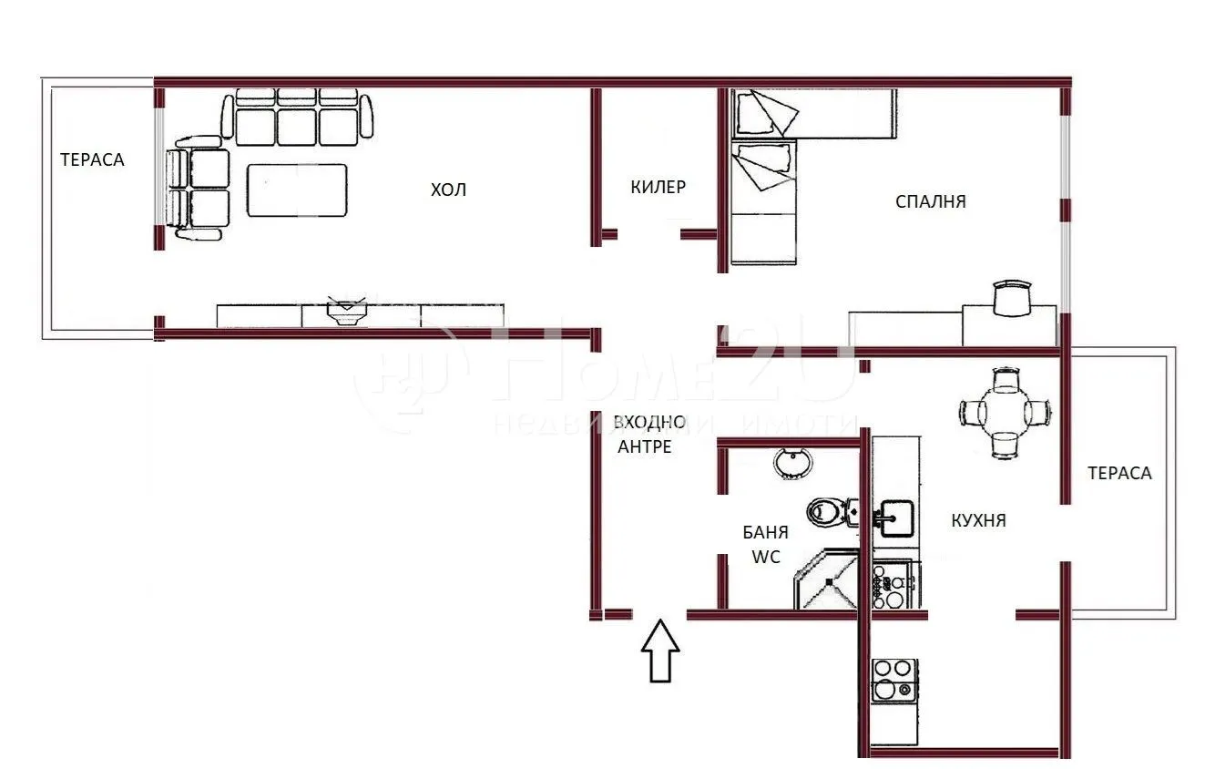
СРЕДЕН ЕТАЖ!!! ПРОСТОР!! ДОБРА ЛОКАЦИЯ!!! Представяме на Вашето внимание панелно жилище,функционално разпределено и състоящо се от входно антре, баня с тоалетна, кухня с излаз на тераса, спалня, килер, хол с излаз на тераса. Намира се в близост до училище, детска градина, автобусни спирки- бърз достъп до всички точки на града. Има страхотен южен изглед към парк и детска площадка.Жилището е светло и просторно, около сградата има много зеленина и простор, което дава усещане за комфорт и спокоен живот на бъдещите собственици. Към имота има прилежащо избено помещение. За повече яснота прилагаме схема с разпределението.За огледи и допълнителна информация се обадете и цитирайте този код:132536

Вход
Или
Все още нямаш профил?
Създай профил
1 / 9





















3-стаен, Владислав Варненчик, Варна
€104,000 / 203,406 лв.
(€1,763 / 3,448 лв. / кв.м)
Характеристики
квадратура
брой стаи
етаж
Особености на имота
- Детски градини
Описание
Прочети още
Наблизо има
В непосредствена близост се намират:
Паркинг
90м
Кафене
431м
Училища и детски градини
Детски градини
Начални
Основни
Средни
Име
Адрес
Ясла
Разстояние
Ипотечен кредитен калкулатор
Варна Владислав Варненчик Тристаен апартамент
