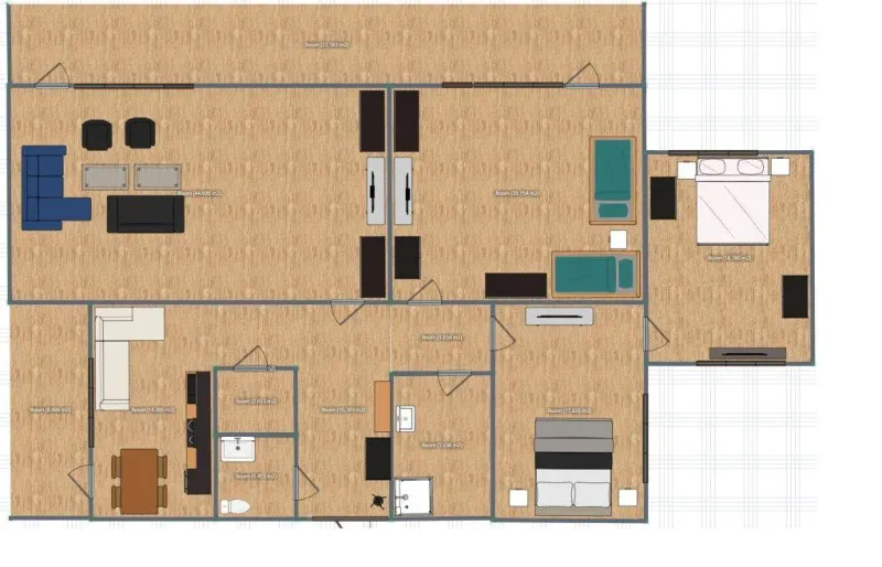
Агенция за недвижими имоти Great Home представя на Вашето внимание многостаен тухлен апартамент в централната част на града, в непосредствена близост до сладкарница Златна рибка .Апартаментът е за ремонт и се състои от просторен хол с излаз на тераса , 3 стаи , кухня с излаз на тераса , баня, санитарен възел , мокро помещение, просторно входно антре и голямо избено помещение. 🏠 Характеристики:✅ Застроена площ: 108,27 кв.м ✅️ Етаж 5/5✅ Строителство: тухла✅ В близост до: центъра, магазини, спирки, детски градини и други удобства💰 Цена: 100 000 евроЗа повече яснота прилагаме схема на разпределение, а за повече информация моля позвънете на 0899 78 78 43 / 089 421 3399 или заповядайте в офиса на агенция за недвижими имоти GreatHome за вашия страхотен дом. Офис : Георги Бенковски 2

Вход
Или
Все още нямаш профил?
Създай профил
1 / 11

























Многостаен, Търговище, Североизточна България
€100,000 / 195,583 лв.
(€926 / 1,811 лв. / кв.м)
Характеристики
квадратура
брой стаи
година на строеж
етаж
Описание
Прочети още
Училища и детски градини
Детски градини
Начални
Основни
Средни
Няма намерени детски градини
