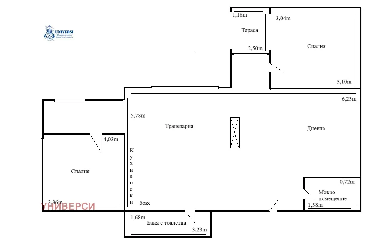
Продаваме основно ремонтиран и новообзаведен, тристаен апартамент.Жилището е готово да посрещне новите си собственици, в напълно завършен вид. Вложените в ремонта и обзавеждането материали са от най-висок клас, поради това, че първоначалната идея е била отдаване за краткосрочни наеми. Отоплението и топлата вода са от ТЕЦ, а като алтернатива има и бойлер. Всички помещения разполагат с висок клас климатици. За допълнителен уют и тишина, всички стени и тавани са с изградена шумо и топлоизолация, а дограмата е шест камерна, с троен стъклопакет. Височината на помещенията от 3,00м, както и голямото остъкляване, правят жилището много светло и създават усещане за простор.Имотът не е ползван никога!Сградата, в която се намира апартамента е от 2015г. и се намира на ул. Краище . Изключително тихо място, обградено от зеленина и в непосредсретвена близост до Южен парк , бул. Витоша , НДК и др. Общите части се поддържат в отлично състояние, най-вече поради това, че самостоятелен вход обслужва общо три жилища. Достъпът до входа и апартаментите е контролиран от алармена система, с индивидуален код за всеки ползващ. В същата сграда продаваме и двустаен апартамент, в идентично състояние. Още наши оферти можете да намерите на www.universi.bg Виж всички обяви в universi.bazar.bg или тук

Вход
Или
Все още нямаш профил?
Създай профил
1 / 17





































3-стаен, Иван Вазов, София
€605,000 / 1,183,277 лв.
(€5,500 / 10,757 лв. / кв.м)
Характеристики
квадратура
брой стаи
година на строеж
етаж
Особености на имота
- Южно изложение
- Саниран блок
- Детски градини
- В близост до парк
Описание
Прочети още
Наблизо има
В непосредствена близост се намират:
Бар
Двете халби45м
Банкомат
ДСК73м
Ресторант
Отечество30м
Аптека
Марешки52м
Паркинг
263м
Кафене
Българската сладкарница185м
Транспорт
Най-близки спирки на градски транспорт до адреса:
Метро
Автобусни линии
Трамвайни линии
1
6
27
7
1
6
27
7
Училища и детски градини
Детски градини
Начални
Основни
Средни
Име
Адрес
Ясла
Разстояние
Ипотечен кредитен калкулатор
София Иван Вазов Тристаен апартамент
