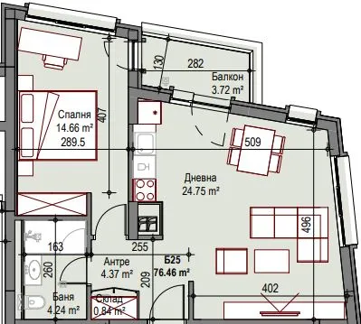
" Estate Factory - Фабриката за имоти " предлага двустаен апартамент на седми етаж в жилищна сграда, на едно от най-комуникативните места, ситуирана в близост до центъра на гр. София. Разполага с дневна, спалня, баня с тоалетна, балкон, антре и склад към апартамента.Висококачествено строителство с максимална енергийна ефективност, с качествена изолация, материали и детайли. Фасадните стени са комбинация от полимерна мазилка и естествен камък. Висок клас алуминиева дограма с троен стъклопакет, с К стъкло профил. Подово отопление в баните, изводи за радиатори на ТЕЦ и изводи за климатици. Към всяко жилище са осигурени звънчева, телефонна и видеодомофонна инсталации, мрежа за включване на кабелна телевизия и интернет. Общите части ще бъдат луксозно изпълнени и оборудвани с гранит, дървена ламперия и луксозен хидравличен асансьор.Налични подземни и наземни паркоместа и гаражи на цени от 25000€. Атрактивна схема на плащане, подходяща и за клиенти с банково кредитиране!Разположен на тиха и зелена улица, на пешеходно разстояние от парк-градина. В близост до две метростанции, спирки на трамвай и тролейбус. Допълнителните му предимства включват супермаркети, разнообразие от услуги, училища и детски градини, които го правят привлекателен избор за семейства и млади професионалисти.

Вход
Или
Все още нямаш профил?
Създай профил
1 / 4











2-стаен, Подуяне, София
€152,920 / 299,086 лв.
(€2,012 / 3,935 лв. / кв.м)
Характеристики
квадратура
брой стаи
година на строеж
етаж
Описание
Прочети още
Наблизо има
В непосредствена близост се намират:
Бар
Халбите 369м
Банкомат
Сибанк118м
Ресторант
CoKitchen263м
Аптека
Ceiba149м
Паркинг
383м
Кафене
118м
Училища и детски градини
Детски градини
Начални
Основни
Средни
Няма намерени детски градини
Ипотечен кредитен калкулатор
София Подуяне Двустаен апартамент
