Unique Estates предлага на вашето внимание нова иновативна и модерна сграда в жилищния квартал Малинова Долина. Сградата е с акт 14 и се очаква да бъде завършена до края на 2025 година. Ще бъде завършена с висок клас довършителни материали и с луксозни общи части. Продават се едностайни, двустайни и тристайни апартаменти, както и паркоместа и гаражи. Всеки апартамент разполага със смарт хоум система на Ajjax Systems, от която собственикът на имота ще може да го контролира през апликация на телефона. Апартаментите се продават на шпакловка и замазка. Всички цени са с включено ДДС!
Характеристики на сградата:
Вентилируема окачена фасада
Асансъори Shindler
Дограма Rehau Shinego
Шумоизолация на пода
Шумоизолация на канализационните тръби
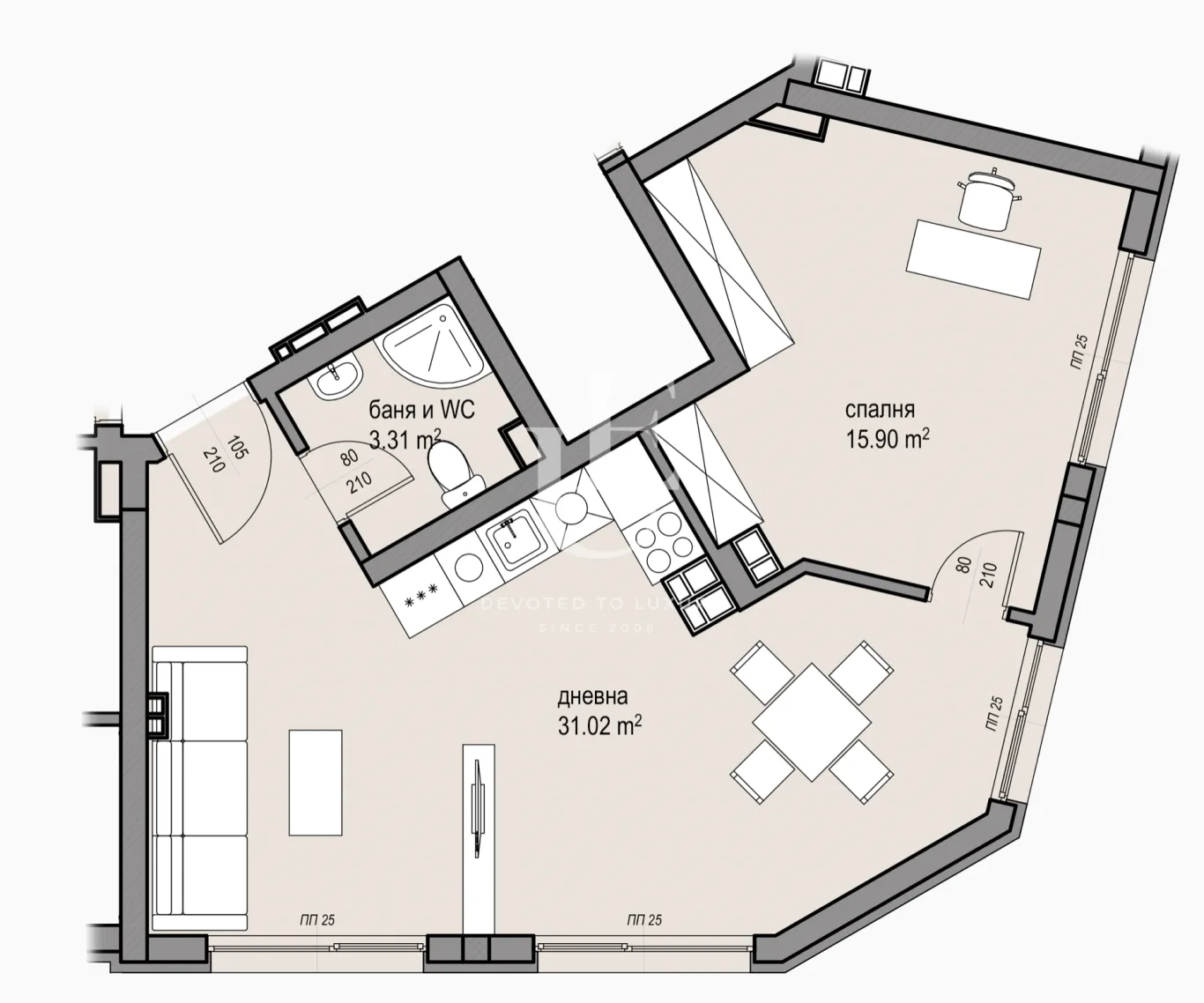
Разпределение:
Антре, дневна с кухненски бокс,спалня,баня с тоалетна, покривна тераса.
Предимства:
- Паркоместа - възможност за закупуване
- Смарт Хоум система
- Висок клас строителство
Цената е без включен ДДС (Ref. ID:26336)








