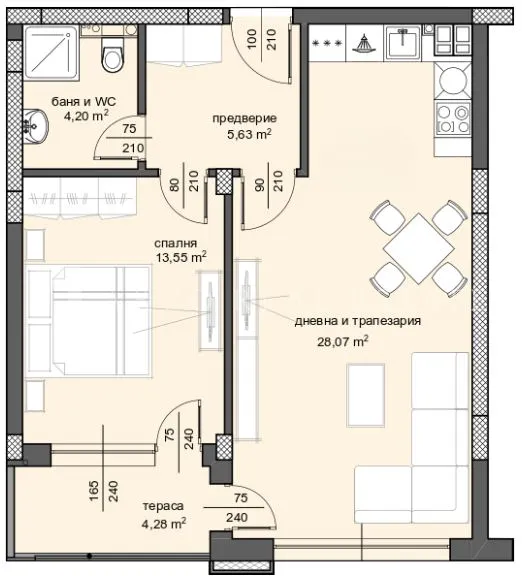
ARCO REAL ESTATE предлага за продажба двустаен апартамент в нова, модерна сграда с луксозни общи части в град Пловдив. Основни характеристики на имота:Площ: 84 кв.м (чиста площ 72 кв.м)Изложение: СеверЕтаж: 7 от 11Завършеност: На шпакловка и замазка – готов за персонализиране според вкуса на новите собственициЛокация:Апартаментът се намира на около 10 минути пеша от централната градска част на Пловдив, в район с множество удобства – супермаркети, ресторанти и просторна пешеходна алея, идеална за дълги разходки през летните дни.За повече информация, моля обадете се на 0878 239 184.Имейл ivan.shtiliyanov@arcoreal.bgТелефон 0878 239 184
1 / 1









2-стаен, Център изток, Пловдив
€138,000 / 269,905 лв.
(€1,643 / 3,213 лв. / кв.м)
Характеристики
квадратура
брой стаи
година на строеж
етаж
Вид строителство
Особености на имота
- Просторно жилище
- Детски градини
Описание
Прочети още
Училища и детски градини
Детски градини
Начални
Основни
Средни
Име
Адрес
Ясла
Разстояние
Ипотечен кредитен калкулатор
Пловдив Център изток Двустаен апартамент
Зареждаме...
