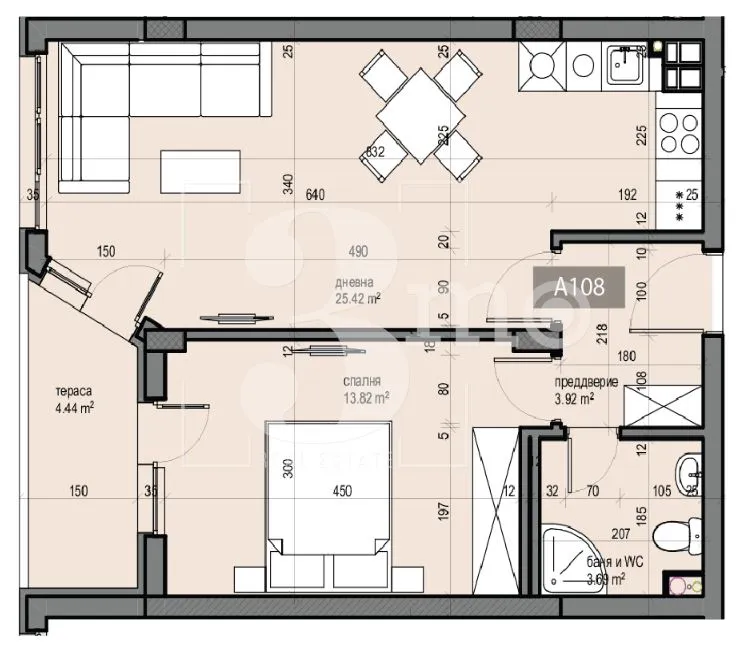
3mo Амалтея представя слънчев, двустаен апартамент за продажба в нов, модерен комплекс в ж.к. "Люлин" 5. Жилището е с площ 69.25 кв.м. и ЗП 59.52 кв.м. Разположено е на етаж 9/10. Състои се от просторна дневна с кухненски бокс (25,42 кв.м.), спалня (13,82 кв.м.), баня с тоалетна (3,69 кв.м.), преддверие (4 кв.м.) и тераса (4.50 кв.м.). Изложението е северозапад. Отоплението е предвидено да бъде на ток. Жилището ще бъде предадено в степен на завършване - шпакловка и замазка. Има опция да бъде завършено и до ключ. Сградата е на етап след АКТ 14. Планиран срок за завършване - м.03.2027 г.
Апартаментът е в затворен комплекс от най-висок клас с контрол на достъпа, 24ч. видеонаблюдение и жива охрана. Състои се от две жилищни сгради, които ще разполагат със собствен просторен озеленен парк с детска площадка, игрище за мини футбол, алеи за разходка и отдих, както и барбекю зона за живущите. Предвидени са и зарядни станции за електрически автомобили.
Схемата на плащане е:
50% на предварителен договор
30% на АКТ 14
10% на АКТ 15
10% на АКТ 16
Оферта № 874
3mo Амалтея, заедно с лицензирания в БНБ кредитен посредник КРЕДИТ НАВИГАТОР предоставят на своите клиенти възможност да изберат най-изгодният ипотечен кредит при закупуване на своето жилище. Услугата е БЕЗПЛАТНА.
1 / 1









2-стаен, Люлин 5, София
€114,263 / 223,479 лв.
(€1,632 / 3,192 лв. / кв.м)
Характеристики
квадратура
брой стаи
година на строеж
етаж
Особености на имота
- Популярен квартал
- Саниран блок
- С гараж
- С паркомясто
- Затворен комплекс
- Детски градини
- Желан имот
- Климатик
- Контрол на достьпа
- Видео наблюдение
- В строеж
- Асансьор
Описание
Прочети още
Транспорт
Най-близки спирки на градски транспорт до адреса:
Метро
Автобусни линии
Трамвайни линии
8
Училища и детски градини
Детски градини
Начални
Основни
Средни
Име
Адрес
Ясла
Разстояние
Ипотечен кредитен калкулатор
София Люлин 5 Двустаен апартамент
Зареждаме...
