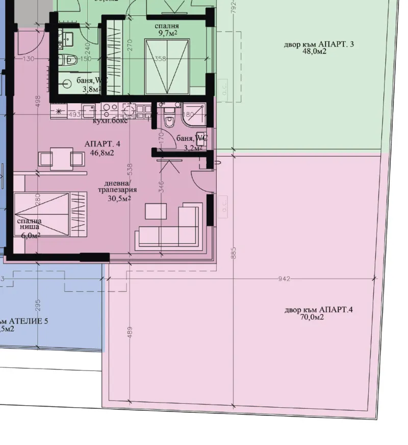
📌 Референтен номер: Z-2098393.❗ Революшън Естейт Ви представя едностаен апартамент в комплекс от две сгради С АКТ 14 в ж.к. Студентски град.❗🔷 Квадратура: 57.78 кв.м.🔷 Етаж: 0 от 6 🔷 Изложение: Изток/Юг 🔷 Разпределение: входно антре, всекидневна с кухненски бокс и трапезария, спална ниша, баня с тоалетна и двор - 70 кв.м. 🔷 Отопление: газ и електричество. 🔷 Сградите разполагат с подземни гаражи и са проектирани с два общи, свързващи етажа.🔷 Очаквано завършване: 2027г.В близост до имота ще намерите: - Спортна зала 'Христо Ботев'- ДГ 79 'Слънчице';- Американски университет в България;- Медицински център 'ФиХелт';- Супермаркет 'Фантастико';- Автобусни спирки.📞 Информация за горепосочения имот, може да получите чрез формата на запитване или чрез директна връзка с нас на посочения телефон.

Вход
Или
Все още нямаш профил?
Създай профил
1 / 5













1-стаен, Малинова долина, София
€171,228 / 334,893 лв.
(€3,004 / 5,875 лв. / кв.м)
Характеристики
квадратура
брой стаи
Особености на имота
- Южно изложение
- Просторно жилище
- Популярен квартал
- С гараж
Описание
Прочети още
Наблизо има
В непосредствена близост се намират:
Транспорт
Най-близки спирки на градски транспорт до адреса:
Метро
Автобусни линии
Трамвайни линии
Училища и детски градини
Детски градини
Начални
Основни
Средни
Име
Адрес
Ясла
Разстояние
Ипотечен кредитен калкулатор
София Малинова долина Едностаен апартамент
