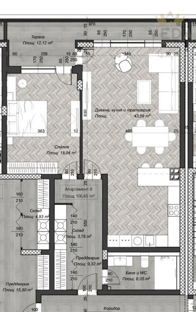
Предлагаме двустаен апартамент БЕЗ КОМИСИОННА в централната част на София- зона Б18. В близост до сградата има различни типове транспорт.Апартамента е със застроена площ 107 кв.м и разполага с дневна с трапезария и кухненски бокс, спалня, баня, голям балкон и складово помещение.Фасадата е с изчистени форми. Използвани са фасадни декоративни елементи, които подчертават обемите. Конструкцията на сградата е монолитна стоманобетонова с външни зидове от 25см тухли + 10см топлоизолация и преградни стени от 25 или 12см тухли. Вътрешните прегради и заграждения на инсталациите в баните са от гипсокартон.Терасите са предвидени с ажурни и плътни парапети с височина от мин. 120см от готов под. Заложени са необходимите топло и хидроизолации съобразно действащите нормативи. Създаването на общо пространство в градска среда е предизвикателство при осигуряването му по функционален начин, което да донесе допълнително за уютна обстановка и качеството на живот. Предвидена е богато озеленена общодостъпна покривна тераса в акцентната зона на сградата – зоната на пробива. Предимства на комплекса:Отлична локацияФункционални и светли жилищаЛуксозни общи частиОзеленена покривна градинаСигурност – контрол на достъпаИзползвани материали:Фасадното остъкляване осигурява максимално естествено осветление във всяко жилищно помещение. Немски алуминиеви профил с троен стъклопакет SchücoЗидария от керамични тухли с дебелина 25см и 12см от WienerbergerВходните пространства са маркирани с декоративна рамка с облицовка от камъкПартерът е с финиш от еталбонд, който ествствено преминава през декоративните слънцезащитни елементи във височина до декоративния профил, който рамкира обществената зонаВъншна мазилка – хоризонтали от светъл цвят - за бордовете на терасите и парапетите; тъмен цвят – по цялата фасада във вътрешносттаТъмен лакобел – който допълнително подчертава вертикалитеДекоративни решеткиПредпазен парапет от композитен материал с мин H=120см от готов подПодземен паркинг:В сутерена са разположени 38бр. паркоместа. Предвижда се автоматизирана система за достъп с дистанционно управление. Стълбищните ядра са отделени от зоната за автомобили с пожарозащитни врати. Предвидени са технически и складови помещения на това ниво.Партерен етаж:Разположени са 18бр. покрити и 7 бр. открити паркоместа., като до тях се стига от автомобилните достъпи от бул.„инж. Иван Иванов“ от запад.Стълбищните ядра са отделени от зоната за автомобили с пожарозащитни врати. Във входните фоайета са отделени общи помещения и помещения за охранител. Предвижда се автоматизирана система за контрол на достъпа. Предвидени са също и складови помещения на това ниво.Схема на плащане: 20/80код на оферта: Z-2903За повече информация Емилия Емилова:0896200048
1 / 8



















2-стаен, Зоните, София
€316,575 / 619,167 лв.
(€2,533 / 4,954 лв. / кв.м)
Характеристики
квадратура
брой стаи
година на строеж
етаж
Особености на имота
- Просторно жилище
- Популярен квартал
- С гараж
- С паркомясто
- Детски градини
Описание
Прочети още
Транспорт
Най-близки спирки на градски транспорт до адреса:
Метро
Автобусни линии
Трамвайни линии
22
11
22
11
Училища и детски градини
Детски градини
Начални
Основни
Средни
Име
Адрес
Ясла
Разстояние
Ипотечен кредитен калкулатор
София Зоните Двустаен апартамент
Зареждаме...
