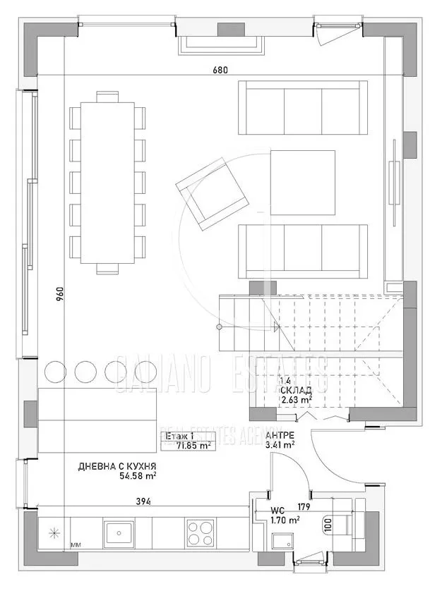
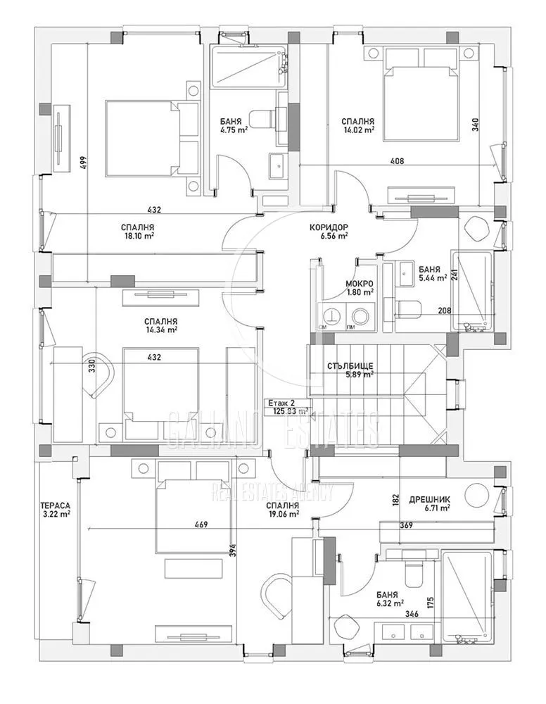
Galiano Estates ви предлага модерна самостоятелна къща в комплекс от 13 еднофамилни къщи (6 самостоятелни и 7 редови), проектирани в хармонична и спокойна среда.Къщата е разположена в тиха част на комплекса и разполага с просторен двор от 370 кв.м., подходящ за семейни моменти, градина или зона за отдих. Осигурени са 2 външни паркоместа.Първият етаж впечатлява с просторна дневна зона с кухня и трапезария, която се отваря към двора чрез големи френски прозорци, осигуряващи изобилие от естествена светлина. На това ниво са разположени още антре, склад и санитарен възел. Височината на помещенията 2.94 м създава усещане за простор и комфорт.На втория етаж са разположени 4 удобни спални, дрешник, мокро помещение и 3 бани, осигуряващи функционалност и комфорт за цялото семейство. Всички помещения са с панорамни френски прозорци, които допринасят за светла и приятна жилищна атмосфера.✔ 2 жилищни етажа ✔ 4 спални и 3 бани ✔ дрешник и мокро помещение ✔ 2 паркоместа ✔ просторен двор ✔ много светлина и модерна архитектураДом, създаден за комфортен семеен живот, пространство и спокойствие, само на минути от града.Срок за завършване: края на 2027 г. Посочената цена е без включен ДДС. Оферта 6941
1 / 9





















Къща, с. Панчарево, София
€495,000 / 968,136 лв.
(€2,500 / 4,890 лв. / кв.м)
Характеристики
квадратура
година на строеж
Вид строителство
Вид отопление
Особености на имота
- Саниран блок
- С паркомясто
- Детски градини
Описание
Прочети още
Транспорт
Най-близки спирки на градски транспорт до адреса:
Метро
Автобусни линии
Трамвайни линии
Училища и детски градини
Детски градини
Начални
Основни
Средни
Име
Адрес
Ясла
Разстояние
Ипотечен кредитен калкулатор
София с. Панчарево Къща
Зареждаме...
