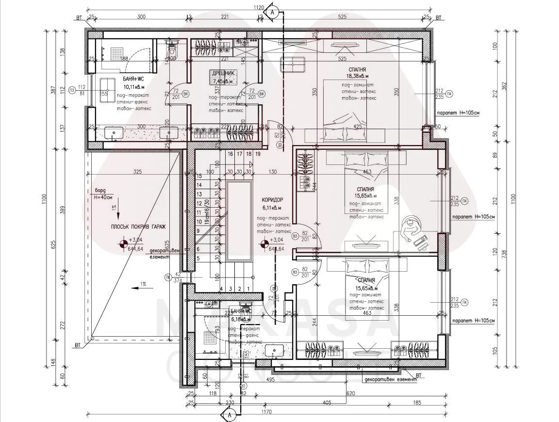
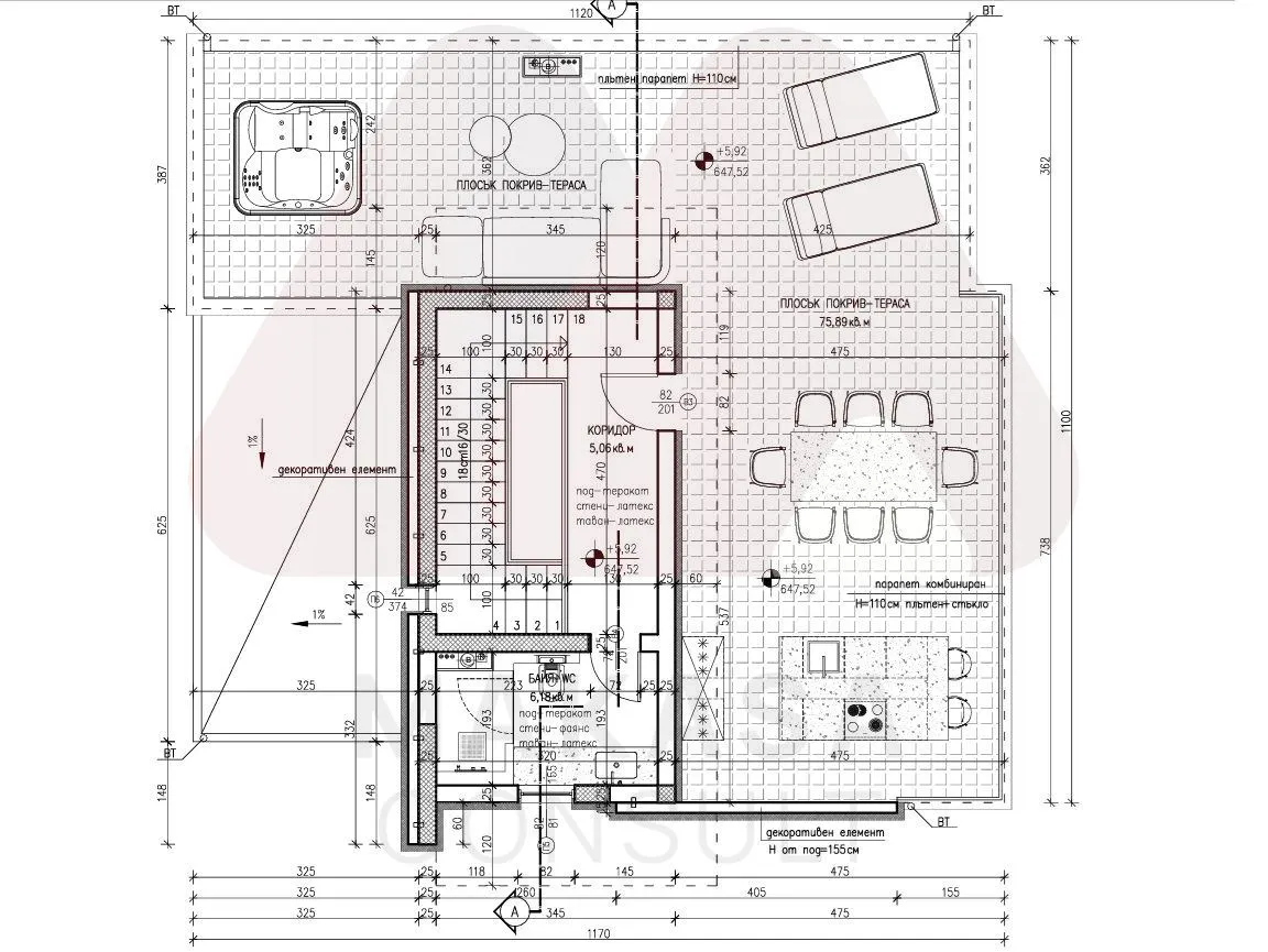
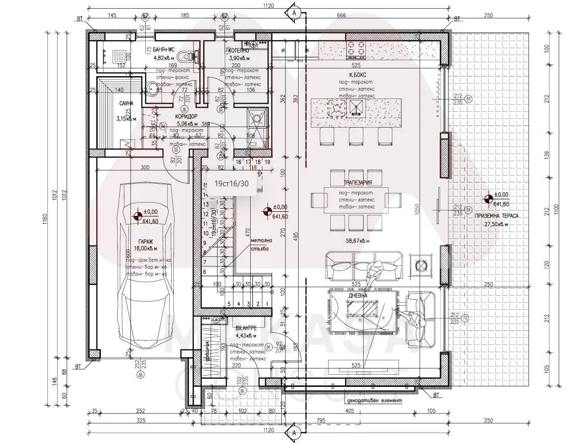
"Макаса консулт" има удоволствието да предложи на Вашето внимание компрес от четири просторни, модерни къщи в полите на Люлин планина и със страхотни гледки към планина Витоша, а именно с. Гурмазово. Къщите са със застроена площ от 120 кв.м, и РЗП 328.10 кв.м. Парцелите са с площ то 459 кв.м до 518 кв.м.Къщите са напълно самостоятелни, със собствен водоизточник, собствена пречиствателна станция от най-висок клас, собствено електрозахранване. Локацията е изключително перспективна с няколко построени комплекса от къщи населени предимно с млади семейства, което предразполага за спокоен начин на живот, без излишен шум. В близост до комплекса се намират: Метростанция „Сливница“ – 10 км – 18 мин. с кола – Детска градина "Детелина" – 4 км – 4 мин. с кола – Училище – 4 км – 5 мин. с кола – Магазини в Божурище – 4 км – 4 мин. с колаМагазин в Гурмазово – 700 м – 1 мин. с кола или 9 мин. пешаВсяка от къщите разполага с три нива, които се разгръщат в следното разпределение:1-ви етаж: входно антре, просторна дневна с трапезария и кухненски бокс с площ от 59 кв.м, приземна градинска тераса с внушаващи гледки и простор, котелно помещение, баня с тоалетна, ИЗГРАДЕНА САУНА.2-ри етаж: три самостоятелни спални, две детски спални по 15.65 кв.м, и една родителска спалня с площ от 18.38 кв.м, дрешник 7.45 кв.м и отделна баня със санитарен възел към родителската спалня с площ от 10 кв.м. Допълнително на етаж има баня със санитарен възел, която обслужва другите две спални.3-ти етаж: Плоска покривна тераса със площ от 76 кв.м, която може да аранжирате по Ваш вкус. Има изградени изводи за кухненски остров или мокър бар, изводи за изграждане на басейн или джакузи. Терасата е достатъчно голяма, за събирания с приятелска компания до като се наслаждавате на спокойствието което Ви носи местността съчетана с простор и впечатляващи гледки.Проектът се характеризира с модерна архитектура, монолитно тухлено строителство, конструктивните елементи са изпълнени от стоманобетон, преградните стени и външните са изпълнени с керамични блокове Wienerberger Porotherm 25см. Топлоизолация 10см, както и 10 см. Окачена фасада с каменна вата и HPL панели. Изградено е подово отопление, както и инсталация за конвектори за охлаждане.Имот, който трябва да се види на живо, за да усетите уюта и спокойствието, което придава, съчетано с близостта и удобствата на големия град.АКО ТОВА Е МЕЧТАНАТА ОТ ВАС И ВАШЕТО СЕМЕЙСТВО КЪЩА В КОЯТО ИСКАТЕ ДА ЖИВЕЕТЕ НЕ СЕ КОЛЕБАЙТЕ ДА НИ ПОТЪРСИТЕ!!!!! +359898842527

Вход
Или
Все още нямаш профил?
Създай профил
1 / 16



































Къща, Долна Баня, Югозападна България
€350,000 / 684,541 лв.
(€1,067 / 2,087 лв. / кв.м)
Характеристики
квадратура
година на строеж
Описание
Прочети още
Училища и детски градини
Детски градини
Начални
Основни
Средни
Няма намерени детски градини
