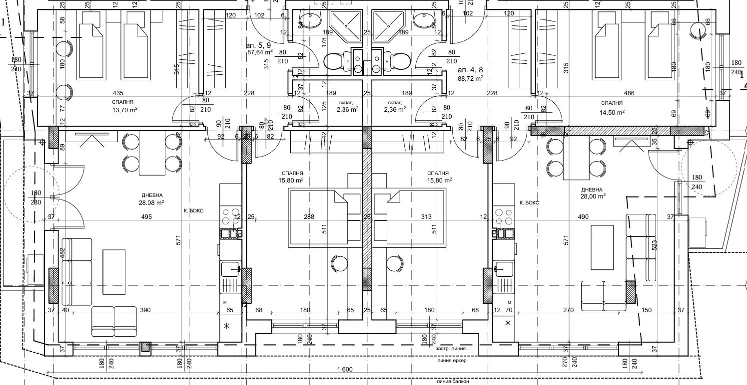
БЕЗ КОМИСИОННА ОТ КУПУВАЧА! ДРИЙМ ВИЖЪН НЕДВИЖИМИ ИМОТИ продава многостаен апартамент на чудесна локация в кв.Лозенец.Намира се в ново строяща се луксозна сграда в близост до Борисовата градина, пл.Журналист, множество спирки на градски транспорт, супермаркети, училище, детски градини и помещения от обслужващия сектор . Жилището е обединение от два тристайни апартамента и има възможност за различни разпределения. Отопление на ТЕЦ. Обекта се изпълнява с висококачествни материли от доказан инвеститор в годините.Възможност за покупка на гаражи. Гъвкава схема на плащане.Обявената цена е БЕЗ ДДС. Оферта в агенцията 11162. Всички наши обяви ги работим с колеги. Още наши оферти може да намерите на www.dreamvision.bg Телефони за връзка: 02/421 96 35 ; 0886 13 22 91 Димитър Георгиев

Вход
Или
Все още нямаш профил?
Създай профил
1 / 4











Многостаен, Лозенец, София
€820,930 / 1,605,600 лв.
(€3,891 / 7,610 лв. / кв.м)
Характеристики
квадратура
брой стаи
година на строеж
етаж
Особености на имота
- Просторно жилище
- Популярен квартал
- Саниран блок
- С гараж
- Детски градини
- Добри училища
- В близост до парк
- Желан имот
Описание
Прочети още
Наблизо има
В непосредствена близост се намират:
Бар
297м
Банкомат
Алианц11м
Ресторант
Forno Cipollini67м
Аптека
ФармаСтор110м
Паркинг
469м
Кафене
Казабланка342м
Транспорт
Най-близки спирки на градски транспорт до адреса:
Метро
Автобусни линии
Трамвайни линии
12
18
92
Училища и детски градини
Детски градини
Начални
Основни
Средни
Име
Адрес
Ясла
Разстояние
Ипотечен кредитен калкулатор
София Лозенец Многостаен апартамент