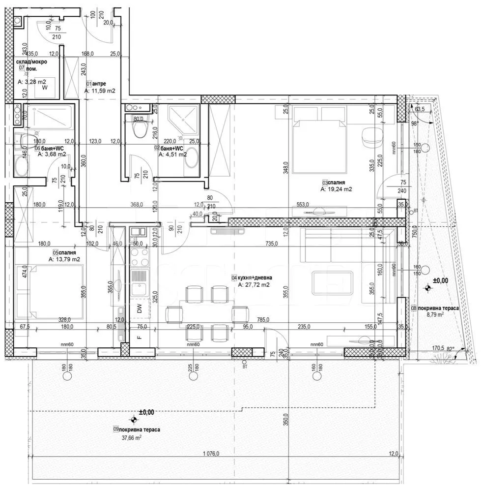
First Estates има удоволствието да представи на Вашето внимание този страхотен, новопостроен тристаен апартамент за продажба, разположен на партерно ниво. Строителят е добре познат на пазара и има страхотна репутация за своите проекти, поради висококачествените материали, които се използват при изпълнението им. Проектът се състои от 2 сгради: А и Б, като всяка от тях е на 6 етажа и ще има магазини на партерните етажи. c Акт 16 Апартаментът е разположен на партерен етаж и разполага с чиста жилишна площ от 98,06 км.м.Състои се от:Входно антреХол и кухня2 спални2 бани + тоалетнаПерално помещение2 терасиОтоплението е с термо помпа. Предлагаме още 2 апартамента в сградата на различни етажи. За повече информация и организиране на оглед, моля свържете се с нас на телефон: 0 700 15 15 1 и цитирайте код на офертата: Z-6-9793

Вход
Или
Все още нямаш профил?
Създай профил
1 / 4











3-стаен, Кръстова вада, София
€327,366 / 640,272 лв.
(€2,072 / 4,052 лв. / кв.м)
Характеристики
квадратура
брой стаи
година на строеж
Описание
Прочети още
Наблизо има
В непосредствена близост се намират:
Училища и детски градини
Детски градини
Начални
Основни
Средни
Няма намерени детски градини
Ипотечен кредитен калкулатор
София Кръстова вада Тристаен апартамент
