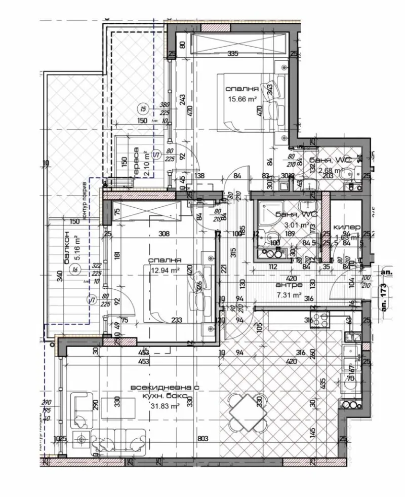
Оферта 1467Агенция AZ предлага за продажба тристаен апартамент в новострояща се сграда в кв. Младост.Комплексът ще се състои от 2 сгради по 18 етажа, всяка от тях с по 189 апартамента и осигурено паркиране с общо 246 броя открити паркоместа, 67 броя паркоместа в покрит паркинг, и 73 паркоместа в 69 броя гаражни клетки. Разположен на терен от 10 декара комплексът ще разполага с парк за отдих и разходка, хранителен магазин и просторни търговски площи за вашият бизнес. Комплексът се намира в предпочитаният за живеене от много варненци квартал Младост. Района предлага множество удобства, като хипермаркет, търговски центрове, училища, детски градини, поликлиника и развита транспортна инфраструктура.Апартаментът се намира на 18-ти жилищен етаж и се състои от антре, дневна и кухня, 2 спални, баня и тоалет и тераса.На разположение сме за огледи и консултации.

Вход


Или
Все още нямаш профил?
Създай профил
1 / 6















3-стаен, Младост, Варна
€179,900 / 351,854 лв.
(€1,525 / 2,982 лв. / кв.м)
Характеристики
квадратура
брой стаи
етаж
Особености на имота
- Просторно жилище
- С гараж
- Детски градини
- В близост до парк
Описание
Прочети още
Наблизо има
В непосредствена близост се намират:
Бар
AJ223м
Банкомат
68м
Ресторант
КОМИТИ286м
Аптека
207м
Паркинг
445м
Кафене
Лоренцо31м
Училища и детски градини
Детски градини
Начални
Основни
Средни
Име
Адрес
Ясла
Разстояние
Детска Градина №36 "Морска Звездица" (С Яслена Група)
с ясла
63м.
Ипотечен кредитен калкулатор
Варна Младост Тристаен апартамент