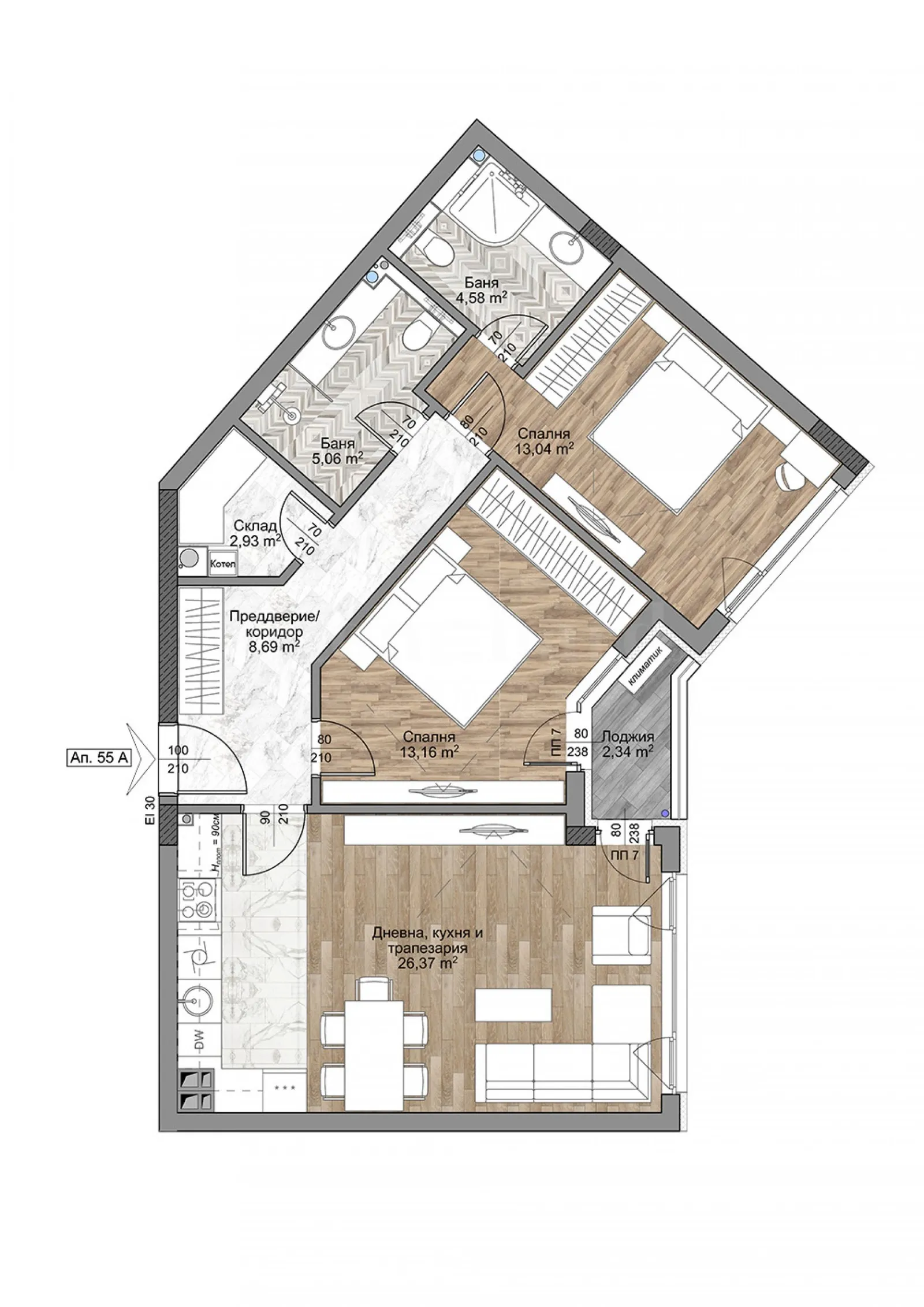
Референтен номер: Z-AP 131185Представяме апартамент в комплекс ново строителство в бързо развиващия се квартал Младост 4 . Комплексът е с удобно местоположение, близо до Бизнес Парк София, метростанция 'Бизнес парк', МВР академия, Икея и София Ринг Мол. От комплекса има бърз и лесен достъп до бул. Александър Малинов и Околовръстен път.В района има всички удобства като магазини и супермаркети, училища и детски градини, спирки на градски транспорт, удобства за спорт и отдих.Сградата е 10-етажна и се състои от три входа А, Б и В.Има възможност за закупуване на паркоместа и гаражи.Апартаментът е тристаен, с обща площ 102.46 кв.м. (нетна площ 87.88 кв.м. + общи части 14.58 кв.м.) и е разположен на четвърти етаж.Разпределение:коридор;дневна с кухня и трапезария;килер;две спални;две бани с тоалетни;тераса.Жилището се предлага за продажба качествено завършено по БДС, на шпакловка и замазка.Технически характеристики:Висок клас на строителството с най-модерни технологии и материали при изграждането, тухли Винербергер, петкамерна дограма, асансьори висок клас. Общите части са изпълнени луксозно, а настилката е от естествен камък гранит. Отоплението е на газ.Етап на завършеност: ВиК инсталации /изпълнени на ниво тапа/;Електроинсталации, звънчево-домофона инсталация, ТВ инсталация, мълниезащитна инсталация всичките в напълно завършен вид;Отоплителна инсталация - на газ;Вентилационна инсталация;Гладка вътрешна мазилка с шпакловка;Бани и санитарни възли на мазилка и замазка;Вътрешна стандартна дограма;Външна ПВЦ- дограма със стъклопакет;Блиндирани входни врати;Общи части в напълно завършен вид.Схема на плащане: Предварителен договор 40% Акт 14 30% Акт 16 30%Очакваме Вашето запитванеАко желаете да организирате оглед на имот, който Ви интересува, или да посетите някой от нашите офиси, моля свържете се с нас. ...За повече информация свържете се с нас и цитирайте референтния номер на имота. Моля, кажете, че сте видeли обявата в този сайт.Референтен номер: AP 131185Тел: +359 889 007 010Моб: +359 877 777 888 (WhatsApp, Viber, SMS)Отговорен брокер:Стоунхард ПРЕМИЪРБез комисиона от купувача

Вход
Или
Все още нямаш профил?
Създай профил
1 / 4











3-стаен, Младост 4, София
 €230,535 / 450,887 лв. 
 (€2,260 / 4,420 лв. / кв.м) 
Характеристики
квадратура
брой стаи
етаж
Описание
Прочети още
Наблизо има
В непосредствена близост се намират:
Банкомат
738м
Ресторант
Grill House473м
Аптека
Жийон475м
Паркинг
58м
Кафене
Onda437м
Училища и детски градини
Детски градини
Начални
Основни
Средни
Няма намерени детски градини
Ипотечен кредитен калкулатор
София Младост 4 Тристаен апартамент