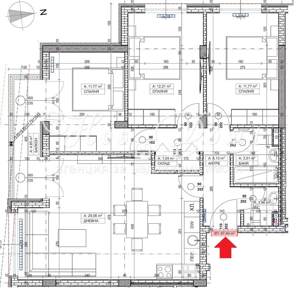
ПЕРФЕКТНОТО СЕМЕЙНО ЖИЛИЩЕ! ПРАВИЛНИ ФОРМИ И ЧУДЕСНИ ПАРАМЕТРИ НА СТАИТЕ! НАЙ-ДОБРИЯТ ЕТАЖ! ИЗЛОЖЕНИЕ ЮГ/ЗАПАД! 10 мин до МЕТРОСТАНЦИЯ! РЕФ.№ Z-78742Апартамента представлява: Входно антре, южен, светъл и просторен Дневен тракт + Кухненска част 29кв.м. с излаз на Балкон 5кв.м., ТРИ непреходни Спални по около 12кв.м. едната от които с излаз на същата тераса, Баня с тоалетна, втора Тоалетна, както и складово помещение. Апартамента е разположен на 3-ти етаж от 7, с югозападно изложение, без преход, без отстъп, без скосяване и голямо отстояние от други сгради. Отличната му цена и локация, го правят чудесно жилище, както за живеене, така и за инвестиция със сигурен доход.Възможност за закупуване на Гараж.Отлична Локация: Имота се намира в един от най-предпочитаните за живеене и инвестиция райони на град София - кв. Слатина. На по-малко от 10мин, пешеходно разстояние от новострящята се метростанция. В непосредствена близост до пазар Слатина. Лесен и бърз достъп до главни пътни артерии, административни учреждения, банки, училища, детски градини, автобусни спирки, детски площадки, аптеки, търговски центрове, супермаркети, козметични студия, заведения и туристически атракции.Състояние: Имотът се издава съгласно БДС - Екстериорна блиндирана врата Solid. Под: нивелирана замазка подготвена за полагане на гранитогрес, паркет или настилка по Ваш избор. Стени : машинно обработена гипсова мазилка с турбозол подготвена за боя или тапет по ваш избор. Мокри Помещения : ръчно обработена циментова мазилка подготвена за полагане на фаянс и теракота. ВиК инсталация на тапа . ЕЛ инсталация : контакти, ключ и фасонки и ПВЦ дограма. ТЕЦ!Забележка: Приложените по-горе описания, снимки, скици, архитектурни разпределения и визуализации имат за цел да Ви дадат максимално добра и идейна представа за общия вид и разпределението на имота! Горепосочените са предоставени и одобрени от собственика, същите са публикувани с неговото съгласие ! Имотът се издава пригоден за живеене и е със статут на апартамент, което го прави идеален за инвестиция и отдаване под наем ! НОВ ДОМ 1 : Компанията разполага с : Юридически Отдел - извършващ всички необходими юридически и технически проверки на имота, организира всички етапи на сделката до нейното финализиране с нотариално прехвърляне на имота. Кредитен Отдел съдействащ за отпускане на банков кредит при възможно най-добри условия за клиента, като избора на банка се определя спрямо нуждите и възможностите на клиента. Строително-Ремонтен Отдел гарантиращ при нужда цялостен ремонт на вашето жилище до ключ при най-изгодни условия и цени. Консултант Недвижими Имоти : Димитър Петров 0895 501 006
1 / 8



















Многостаен, Слатина, София
€266,500 / 521,229 лв.
(€2,401 / 4,696 лв. / кв.м)
Характеристики
квадратура
брой стаи
година на строеж
етаж
Особености на имота
- Южно изложение
- С гараж
- Детски градини
Описание
Прочети още
Транспорт
Най-близки спирки на градски транспорт до адреса:
Метро
Автобусни линии
Трамвайни линии
Училища и детски градини
Детски градини
Начални
Основни
Средни
Име
Адрес
Ясла
Разстояние
Ипотечен кредитен калкулатор
София Слатина Многостаен апартамент
Зареждаме...
