Holding Group Real Estate представя на Вашето внимание двуетажна къща в луксозен комплекс от затворен тип с модерна архитектура и дизайн.
Разпределението е следното:
На етаж едно са разположени антре, просторен дневен тракт с кухненска и трапезна част с излаз на веранда, килер, тоалетна, гараж с топла връзка и стълбище към втори етаж.
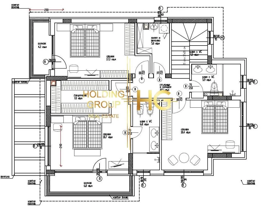
На етаж две са разположени коридор, три хубави спални, две бани с тоалетни, гардеробна, перално помещение и два балкона.
Налични са партиди за ток и вода, канализация.
Локацията е тиха и спокойна, далеч от шума на големият град и същевременно не далеч от центъра на града.
Целия проект се състои от 18 еднофамилни къщи - двуетажни с площ от 217кв.м и триетажни с площ от 341 кв.м.
Къщите имат обособени градини и веранди, както и възможност за допълнително паркиране.
Целогодишно отопляем външен басейн, детска и спортна площадки, алеи и места за отдих са част от целия проект.
Строителството на сградите е съобразено така, че всеки собственик да може да се наслаждава на простора и изящната панорамна гледка, разкриваща се от френските прозорци на къщите.
Завършване по ''БДС'', включващо алуминиева дограма с термомост на REYNAERS- система за плъзгане с повдигане CXPLS, централно подово отопление; подготовка за изграждане на фотоволтаична система на покрива на всяка къща и 'smart home' система.
Възможност за разсрочено плащане , изготвено индивидуално за всеки клиент, както и кредитиране при най- изгодни условия.
Допълнителни паркоместа пред всяка къща са бонус.
Заповядайте на среща и оглед за да разберете повече за комплекса.
При интерес цитирайте кода на офертата: Z-
Код на оферта 3936.
1 / 10























Къща, Траката, Варна
€435,000 / 850,786 лв.
(€2,005 / 3,921 лв. / кв.м)
Характеристики
квадратура
Вид строителство
Описание
Прочети още
Ипотечен кредитен калкулатор
Варна Траката Къща
Зареждаме...
