Добре дошли в Сгради Olympia Homes II – вашето ново убежище в южната част на София, естественото продължение на комплекс Olympia Homes.
Намираме се в кв. „Малинова долина“, на бул. “Климент Охридски” 38, на границата с Националната спортна академия и Студентски град. Има лесен изход към южната дъга на околовръстния път
и бърз достъп до Бистрица, Панчарево и природен парк Витоша.
Сгради Олимпиа Хоумс предлагат предино подземно паркиране, осигурявайки ви удобство и спокойствие.
1 / 10























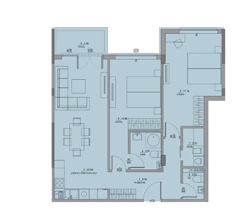
3-стаен, Студентски град, София
Цена по запитване
Характеристики
квадратура
брой стаи
етаж
Особености на имота
- С гараж
- Затворен комплекс
- Контрол на достьпа
- С паркомясто
- Видео наблюдение
- В строеж
- Охраняван имот
Описание
Прочети още
Описание на проекта

Сгради Olympia Homes II
Булевард Свети Климент Охридски 36, 1756 София, България
София Студентски град Тристаен апартамент
Зареждаме...