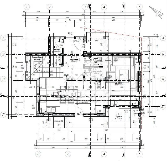
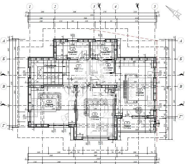
Агенция Живена предлага за продажба нова двуетажна къща с морска панорама, въведен в експлоатация - АКТ 16. Намира се в района между к.к. Св.Св. Константин и Елена и кв. Виница, в м-т Горна Трака, на тиха улица, с удобен достъп и отлична локация, на около 2.5 км до морето и плажа. Имотът е с озеленено дворно място - 290 кв.м, с предвидени паркоместа за два автомобила. Къщата е на два етажа с РЗП: 138.90 кв.м, подходяща за целогодишно живеене или за ваканция. Издава се в степен на завършеност по БДС, на шпакловка и замазка. Разпределението е, както следва: Първи етаж - коридор (5.97 кв.м), голяма дневна с трапезария и кухненска част (29.92 кв.м), перално помещение, килер, тоалет, тераса (8.14 кв.м), стълбище към второ ниво (4.90 кв.м); Втори етаж - коридор, голяма спалня (14.90 кв.м) с дрешник, собствена баня и излаз на тераса (3.31 кв.м) с нескриваема панорама от втори етаж, обща баня с тоалетна, две допълнителни спални (11.52 и 10.37 кв.м), баня с тоалетна. Прозорците са с PVC дограма на Komerling. Имотът разполага със самостоятелна пречиствателна станция, изграден чисто нов водопровод към ВиК Варна, собствени партиди за ток и вода. За паркиране на автомобили са осигурени 2 паркоместа - едно във вътрешния двор, описано в документа за собственост и едно до парцела. Подходяща е за ипотечно кредитиране! Има възможност за довършване До ключ. Агенция Живена извършва необходимите проверки на имота, който сте избрали, организира всички етапи на сделката до нейното финализиране. Оказваме съдействие за отпускане на банков кредит. Оферта 6743
1 / 17





































Къща, Траката, Варна
€298,000 / 582,837 лв.
(€2,144 / 4,193 лв. / кв.м)
Характеристики
квадратура
година на строеж
Вид строителство
Особености на имота
- В строеж
- Контрол на достьпа
- Саниран блок
Описание
Прочети още
Ипотечен кредитен калкулатор
Варна Траката Къща
Зареждаме...
