Vivahome има удоволствието да Ви предложи за продажба тристаен апартамент с просторни помещения в кв. Христо Ботев!
🏗️ Строителството е на етап разрешение за строеж! Отличен избор за целогодишно живеене.
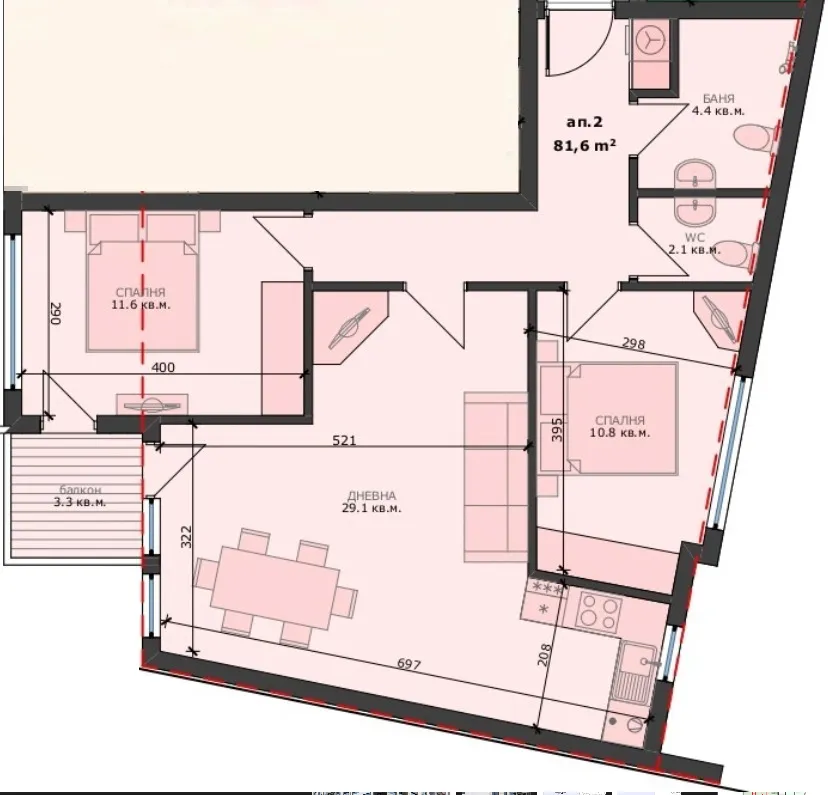
📐 Разпределение на апартамента:
--> Коридор
--> Просторна всекидневна с кухненски бокс
--> Две спални
--> Санитарен възел /баня и тоалет отделно/
--> Тераса
🎯 Начин на завършване:
-> Петкамерна цветна PVC дограма / цвят тъмен дъб / клас А с нискоемисионно /енерджи / стъкло.
-> Топлоизолационна система EPS -10 см дебелина, клас А на пожарна оценка и положена минерална мазилка парапети: стъклен панел.
-> Стени и тавани: машинно положена гипсова мазилка.
-> Под : положена замазка.
-> Тераси завършени 100 % с положен гранитогрес.
-> Електрическа инсталация завършена на 100% , с монтирани ключове и контакти ; монтиран електромер с
Открита партида към енерго-разпределително дружество.
-> Изградено външно ел. захранване с разрешение за ползване.
-> Изградена мълниезащита.
-> Изградена слаботокова инсталация.
-> Монтирани ВиК тръбни трасета /на тапи/,присъединена към ВиК мрежата с разрешение за ползване.
-> Предварително заложени тръбни трасета за климатик във всеки апартамент.
-> Входни врати: блиндирани ,пожароустоичиви / EI 60 /.
-> Общи части /стълбище и коридори / завършени на 100 % - положен гранитогрес на пода и стълбището, стените измазани и с положена минерална мазилка.
-> Монтирана домофонна система.
-> Дворно място с положени настилки и озеленяване.
📞За повече информация и огледи: Бойко Спасов: 0879991120
VIVAHOME - комплексни решения в сферата на недвижимите имоти !
Разгледайте и другите ни предложения на www.vivahome.bg

Вход
Или
Все още нямаш профил?
Създай профил
1 / 4











3-стаен, Христо Ботев, Варна
€143,000 / 279,684 лв.
(€1,490 / 2,914 лв. / кв.м)
Характеристики
квадратура
брой стаи
година на строеж
етаж
Особености на имота
- Асансьор
Описание
Прочети още
Ипотечен кредитен калкулатор
Варна Христо Ботев Тристаен апартамент
