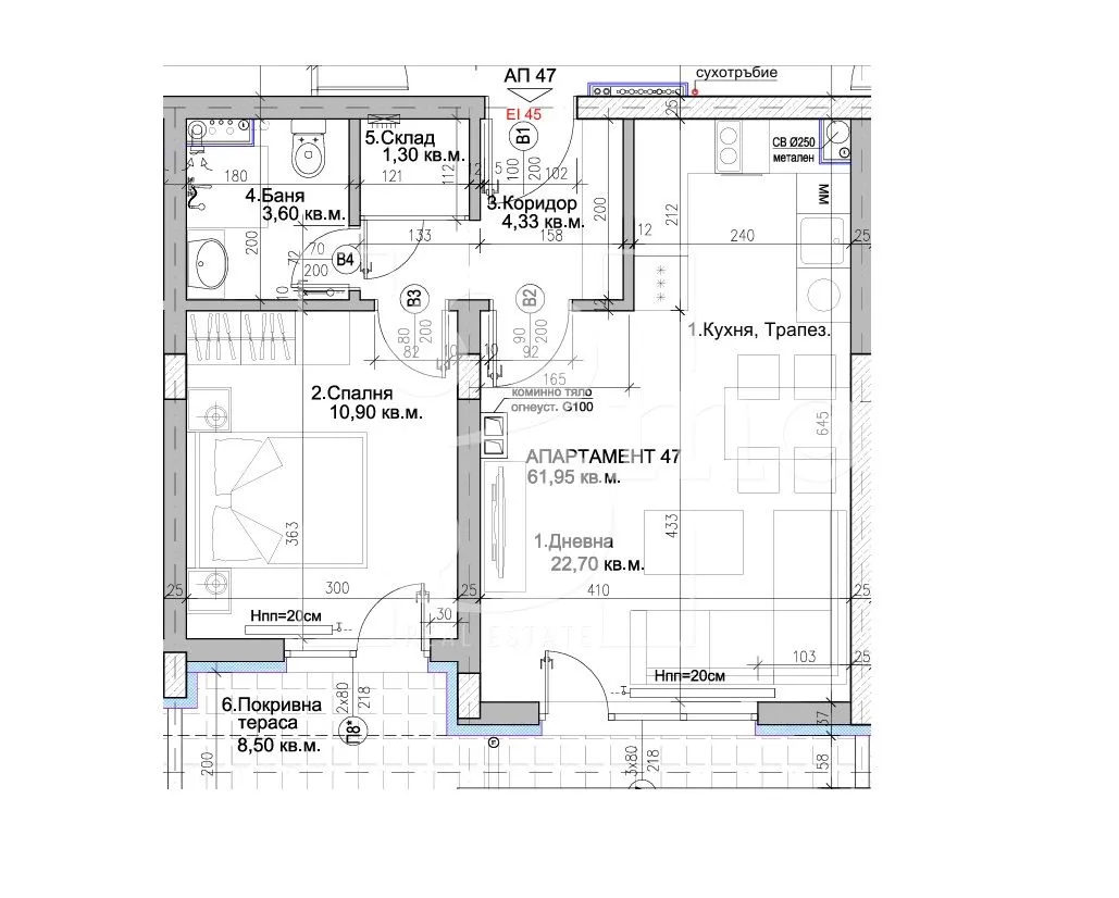
3mo Амалтея има удоволствието да Ви предложи южен двустаен апартамент в новострояща се модерна сграда пред акт 15 в ж.к. „Люлин“ 5 в столицата. Планиран Акт 16 в началото на 2026-та година. Предложеният имот с обща площ от 71,22 кв.м. (застроена 61,95 кв.м.) и се състои от: коридор (4,33 кв.м.), всекидневна с кухненски бокс и трапезария (22,70 кв.м.) с излаз на тераса (8,50 кв.м.), спалня (11 кв.м.), складово помещение (1,30 кв.м.) и санитарно помещение (3,60 кв.м). Жилището е разположено на девети от общо девет етажа с изложение юг. Продава се в степен на завършеност по БДС с монтирана входна врата, поставена дограма, изградена домофонна инсталация и интернет окабеляване. Има опция за индивидуална оферта от инвеститора за довършителни работи и обзавеждане. Сградата разполага с подземни гаражи и надземни паркоместа, които могат да се закупят отделно. Възможни са различни схеми на плащане. В проекта са вложени висок клас материали с модерно изпълнение на общите части и елегантна фасада. Инвеститорът е с дългогодишен опит в строителството. В близост до имота са разположени множество и най-различни търговски, хранителни и денонощни магазини и обекти. Също така детска градина, училище и спирки на градски транспорт с бърз превоз до метростанции Люлин, Западен парк и Сливница. Връзката с централната и други части на столицата се осъществява посредством бул. Добринова скала , бул. Райко Даскалов, бул. Петър Дертлиев и Околовръстен път.
Оферта № 749
3mo Амалтея, заедно с лицензирания в БНБ кредитен посредник КРЕДИТ НАВИГАТОР предоставят на своите клиенти възможност да изберат най-изгодният ипотечен кредит при закупуване на своето жилище. Услугата е БЕЗПЛАТНА.
1 / 11

























2-стаен, Люлин - 1 до 5, София
€128,200 / 250,737 лв.
(€1,806 / 3,532 лв. / кв.м)
Характеристики
квадратура
брой стаи
година на строеж
етаж
Вид строителство
Особености на имота
- Популярен квартал
- Саниран блок
- С гараж
- С паркомясто
- Южно изложение
- Детски градини
- Желан имот
Описание
Прочети още
Транспорт
Най-близки спирки на градски транспорт до адреса:
Метро
Автобусни линии
Трамвайни линии
Училища и детски градини
Детски градини
Начални
Основни
Средни
Име
Адрес
Ясла
Разстояние
Ипотечен кредитен калкулатор
София Люлин - 1 до 5 Двустаен апартамент
Зареждаме...
