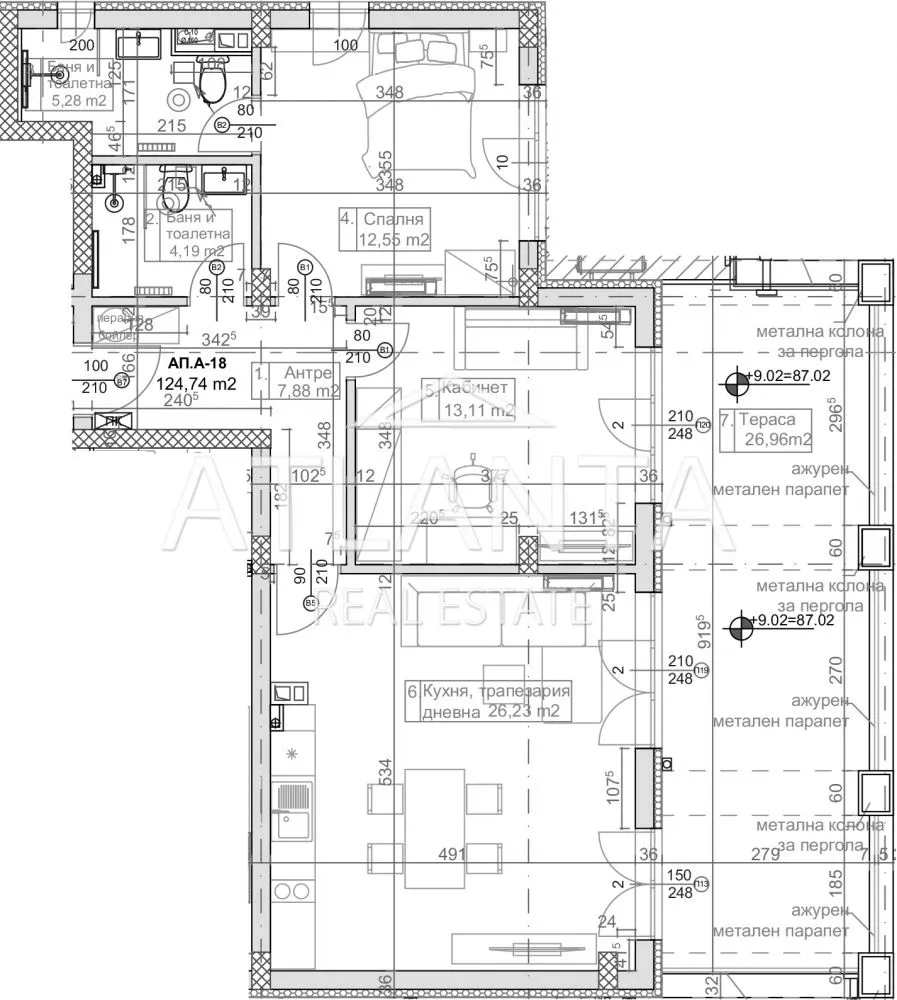
Нескриваема морска панорама! Код на оферта: Z-IR-4588Предлагаме Ви за продажба апартамент в новострояща се жилищна сграда, непосредствено над Слънчев ден. Комплексът е с площ 4000 кв.м. проектиран с 64 апартамента, разположени в две сгради.Проектът предвижда различни по големина жилища, много зелени площи, детски кътове, зона за отдих. Сградата е проектирана с модерна архитектура с функционално разпределени помещения. Комплексът е разположен в гориста местност с чист въздух, на пешеходно разстояние от красивите плажове, с удобна локация, с бърз и лесен достъп до всяка точка.Към апартаментите се предлагат паркоместа и гаражи, разположени на четири нива с четири подхода за лесен достъп към жилищната част. Комплексът ще бъде от затворен тип с контрол на достъпа с изградена чип система. Внедряване на енергийно ефективни решения, които минимизират енергийната консумация чрез иновативни технологии, както и използване на високачествена изолация и монтаж на дограма от висок клас.Паркоместа - 10 000 евро, гаражи - от 15 000 евро до 20 000 евро.

Вход
Или
Все още нямаш профил?
Създай профил
1 / 6















3-стаен, Покрайнини, Варна
€250,000 / 488,958 лв.
(€1,656 / 3,239 лв. / кв.м)
Характеристики
квадратура
брой стаи
година на строеж
етаж
Особености на имота
- Просторно жилище
- С гараж
Описание
Прочети още
Училища и детски градини
Детски градини
Начални
Основни
Средни
Име
Адрес
Ясла
Разстояние
Ипотечен кредитен калкулатор
Варна Покрайнини Тристаен апартамент
