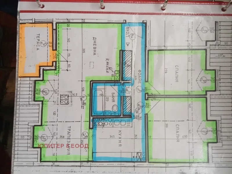
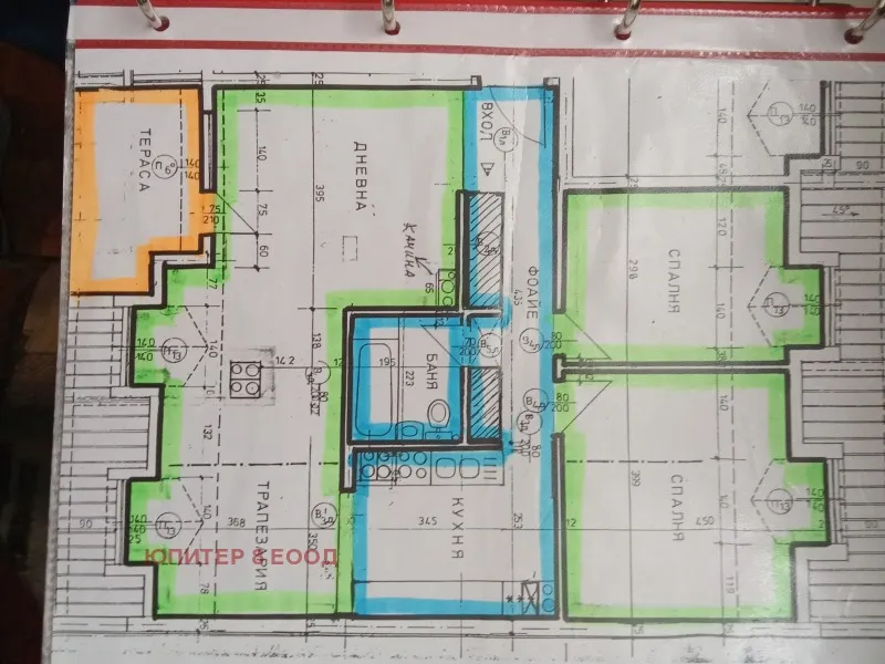
Просторен непреходен тристаен апартамент с подземен гараж в сграда от 2003 г. Намира се в най-предпочитаната част от квартала. Застроена площ /без общи части/ по нотариален акт 119 кв.м. Подземен гараж със застроена площ 19 кв.м.Апартаментът е след ремонт и е със следното разпределение: коридор, просторна дневна с камина, отворена към светла трапезария и светла кухня. Тераса с панорама към Витоша пред хола. Самостоятелен вход за кухнята от коридора, две самостоятелни спални, към една от които има дрешник. Голяма баня с тоалетна, ТЕЦ и самостоятелно ел. котле към апартамента. Артистични скосявания в трапезарията. Изложение: североизток /спални/, югозапад /хол, трапезария, кухня, тераса. Подова настилка : естествен паркет, баня с тоалетна: теракот, фаянс, вана. Апартаментът е напълно обзаведен с мебели от масив. 0878928703, 0888237530

Вход
Или
Все още нямаш профил?
Създай профил
1 / 17





































Многостаен, Борово, София
€450,000 / 880,124 лв.
(€3,462 / 6,770 лв. / кв.м)
Характеристики
квадратура
брой стаи
етаж
Особености на имота
- Южно изложение
- С гараж
- Детски градини
Описание
Прочети още
Наблизо има
В непосредствена близост се намират:
Бар
Seven480м
Банкомат
AlphaBank242м
Ресторант
Червен Изток29м
Аптека
Болино138м
Паркинг
248м
Кафене
132м
Транспорт
Най-близки спирки на градски транспорт до адреса:
Метро
Автобусни линии
Трамвайни линии
27
7
Училища и детски градини
Детски градини
Начални
Основни
Средни
Име
Адрес
Ясла
Разстояние
Ипотечен кредитен калкулатор
София Борово Многостаен апартамент