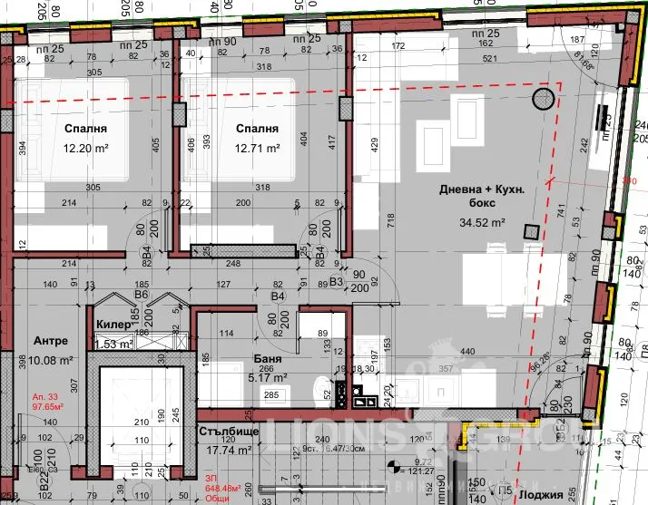
ИЗГРЕВ!! ПРОСТОРЕН!! РАЗСРОЧЕНО ПЛАЩАНЕ!! 300 МЕТРА ОТ ХР. СМИРНЕНСКИ!!Представяме Ви, Тристаен аапртамент находящ се на ет. 5 от 7 с квадратура 118 кв.м. със следното разпределение:❗ДНЕВНА С КУХНЕНСКА ЧАСТ❗ДВЕ СПАЛНИ❗БАНЯ И ТОАЛЕТНА❗ТЕРАСА❗КОРИДОР❗МАЗААпартамента се намира в новострояща се жилищна сграда, на изключително тихо и спокойно място, с бърза връзка към главни пътни артерии!!Референтен номер: Z-13939Контакти: 0887 222 477МИЛЕН ГЕОРГИЕВ

Вход
Или
Все още нямаш профил?
Създай профил
1 / 4











3-стаен, Изгрев, Варна
€180,850 / 353,712 лв.
(€1,559 / 3,049 лв. / кв.м)
Характеристики
квадратура
брой стаи
година на строеж
етаж
Особености на имота
- Просторно жилище
- Саниран блок
- С гараж
- С паркомясто
- Детски градини
Описание
Прочети още
Училища и детски градини
Детски градини
Начални
Основни
Средни
Име
Адрес
Ясла
Разстояние
Ипотечен кредитен калкулатор
Варна Изгрев Тристаен апартамент